Vente Maison 86800, TERCE france 179 900 €
1 / 4
Descriptif du bien
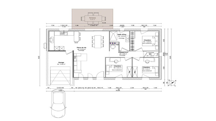
Votre agence IMMOVIENNE vous présente ce projet sur une parcelle de 850m² viabilise. Ce projet est élaboré en partenariat avec notre maître d'oeuvre INSTEAD à Poitiers et vous propose cette maison de Plain Pied en Re2020 .Cette maison est l'alliance du confort et de la compacité. Son vaste espace de vie est associé à trois belles chambres. Le garage intégré ajoute au confort de cette maison et permet un décalage de la cuisine par rapport au salon/séjour. Ses nombreuses ouvertures vous assureront un accès direct vers le jardin. Le terrain hors lotissement vous apportera la tranquillité et vue imprenable sur la campagne .
- Type de bien : Maison
- Surface : 80 m²
- Localisation : France - Nouvelle-Aquitaine - Vienne
- Ville : TERCE
- Code postal : 86800
- Annonce créée le 13/01/2026



