Vente Maison 33400, Talence france 454 000 €
Descriptif du bien
A VISITER - VOTRE MAISON NEUVE
Dans un quartier calme et prisé de Talence, cette nouvelle maison profite de la sérénité d'un quartier résidentiel et arboré. Cette adresse est également celle de la proximité : commerces, services, écoles, supermarchés, bus
tout reste accessible à moins de 10 minutes à pied. L'arrêt de tram Peixoto est également à 10min à pied.
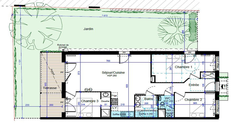
Elle se compose d'une entrée avec placard, WC indépendant et son espace lave linge. La pièce à vivre de 35m2 donne sur une terrasse protégée d'un auvent vers un jardin à l'abri des regards. L'intérieur se démarque par une luminosité importante grâce à la disposition traversante Est-Ouest. Le plan est idéalement conçu, de nombreux rangements pour libérer l'espace, de généreux extérieurs, deux chambres, une suite parentale avec salle d'eau attenante
tout participe à un confort résidentiel hors du commun. Enfin, vous trouverez une salle de bain double vasque avec baignoire.
De subtils détails soulignent cette architecture intemporelle : des marquises abritant l'entrée, auvent en surplomb de la terrasse, les menuiseries, volets roulants et porte d'entrée en aluminium
Ses prestations, son prix, sa localisation ainsi que le cadre en font un bien très prisé.
2 places de parking complètent ce bien.
- Frais de Notaires Réduits
- Garanties
- RT 2012
- ...
A VISITER - VOTRE MAISON NEUVE
Honoraires à la charge du vendeur. Dans une copropriété de 5 lots. Aucune procédure n'est en cours. DPE en cours. Les informations sur les risques auxquels ce bien est exposé sont disponibles sur le site Géorisques : georisques.gouv.fr.
Votre conseiller RH Patrimoine : Marc VEYRET
Agent commercial (Entreprise individuelle)
- Type de bien : Maison
- Surface : 82 m²
- Localisation : France - Nouvelle-Aquitaine - Gironde
- Ville : Talence
- Code postal : 33400
- Annonce créée le 31/10/2025





