Vente Maison 37250, SORIGNY france 99 900 €
1 / 6
Descriptif du bien
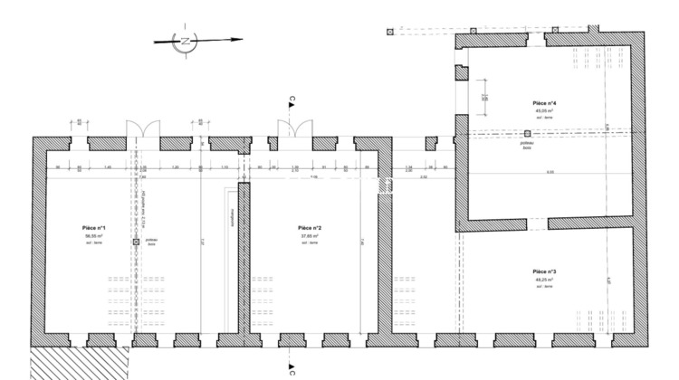
EXCLUSIVITE!!! A découvrir proche du centre de Sorigny. A RENOVER EN HABITATION!!! Belle grange de 187m² au sol sur une parcelle de 1635m² non viabilisée. Les informations sur les risques auxquels ce bien est exposé sont disponibles sur le site Géorisques : www.georisques.gouv.fr (5.27 % honoraires TTC à la charge de l'acquéreur.) CYRIL ABRIOUX (EI) Agent Commercial - Numéro RSAC : 813250081 - TOURS.
- Type de bien : Maison
- Surface : 187 m²
- Localisation : France - centre-val-de-loire - Indre et Loire
- Ville : SORIGNY
- Code postal : 37250
- Annonce créée le 10/02/2026





