Vente Maison 01170, Ségny france 699 000 €
Descriptif du bien
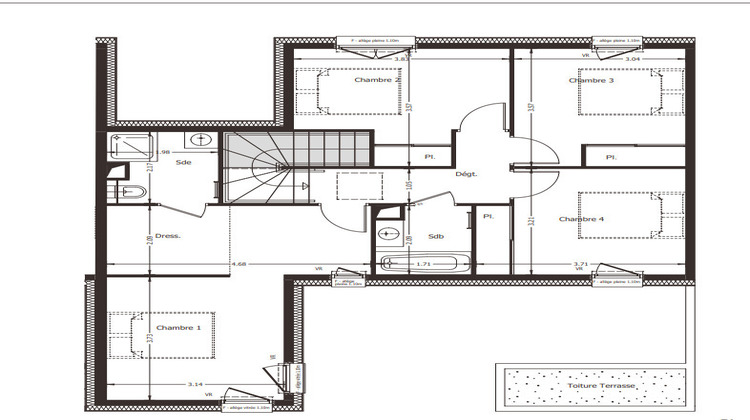
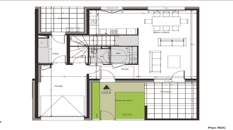
SEGNY 01170 - Villa neuve T5 de 117m2 avec deux jardins, deux terrasse et garage. La villa est composée au rdc : une entrée, une salle d'eau, un WC iinvité avec lave-main, une cuisine équipée ouverte sur la grande pièce de vie avec un accès à la première terrasse et au premier jardin privatif, un cellier avec accès à la deuxième terrasse et un garage fermé. A l'étage : un dégagement, une salle de bain, trois grandes chambres avec placard intégré, une suite parentale avec dressing et salle d'eau avec WC.
MATESA IMMOBILIER, agence spécialiste du Pays de Gex, Vente et achat maison SEGNY 01170.
'Les informations sur les risques auxquels ce bien est exposé sont disponibles sur le site Géorisques http://www.georisques.gouv.fr'.
- Type de bien : Maison
- Surface : 117 m²
- Localisation : France - Auvergne-Rhône-Alpes - Ain
- Ville : Ségny
- Code postal : 01170
- Disponible le 02/02/2026
- Annonce créée le 10/09/2025





