Vente Maison 95110, Sannois france 686 000 €
Descriptif du bien
*** RARE Maison neuve VEFA à Sannois quartier Pasteur limite Saint-Gratien ***
Livraison prévue juin 2026
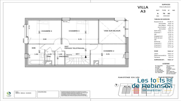
A 10 minutes à pied de la gare RER C 'Ermont Eaubonne', des lignes transilien H & J, à 10 minutes de la gare de Sannois (ligne J), découvrez cette maison neuve de 125m² sans mitoyenneté à l'architecture contemporaine.
RDC : Entrée avec placard, grande pièce de vie avec séjour cathédrale, cuisine américaine (à aménager), suite parentale, salle d'eau, dressing et WC individuel.
1er étage : Trois grandes chambres, espace bureau, salle de bain et WC séparé.
Beau jardin entièrement clôturé de 158m² avec terrasse sur séjour.
2 places de parking.
* Plancher chauffant basse température au RDC / radiateurs à eau à l'étage
* Carrelage RDC / parquet au 1er étage
* Volets roulants en aluminium
* Portail coulissant motorisé avec fonction piéton
* RJ45 dans toutes les pièces
Maison conforme RE2020 avec chauffage individuel par pompe à chaleur air/eau.
Ne manquez pas cette opportunité rare !
Honoraires inclus de 2.56% à la charge de l'acquéreur. Prix hors honoraires 668 850 . Dans une copropriété de 4 lots. Aucune procédure n'est en cours. Non soumis au DPE. Les informations sur les risques auxquels ce bien est exposé sont disponibles sur le site Géorisques : georisques.gouv.fr.
Votre conseiller Les Toits de Robinson : Minke BENJAMINS
Agent commercial (Entreprise individuelle)
RSAC 893 695 528 Evry
- Type de bien : Maison
- Surface : 124 m²
- Localisation : France - ile-de-france - Val d'oise
- Ville : Sannois
- Code postal : 95110
- Annonce créée le 04/04/2025



