Vente Maison 83110, Sanary-sur-Mer france 815 000 €
Descriptif du bien
SANARY-SUR-MER Quartier très recherché de Beaucours
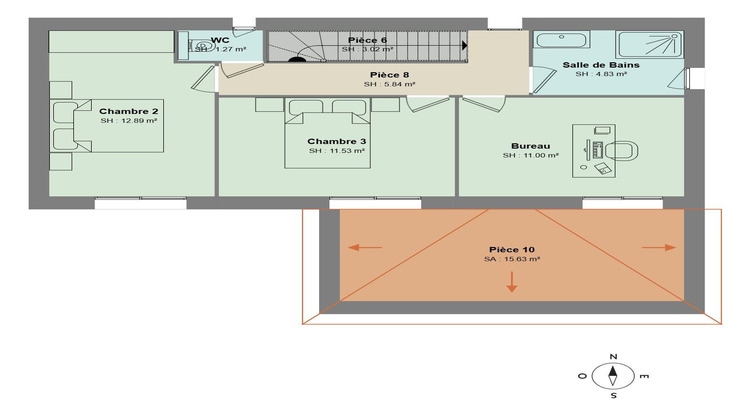
Projet de villa T5 de 117 m² Terrain de 473 m² À deux pas de la mer
Dans le secteur prisé de Beaucours, à seulement quelques pas de la mer et 300 m des commerces, découvrez ce projet de villa T5 de 117 m², idéalement implanté sur un terrain calme de 473 m², piscinable.
Un projet moderne et personnalisable
La villa se compose :
D'un spacieux séjour / cuisine de 45 m², ouvert sur une belle terrasse
D'une suite parentale de plain-pied avec salle d'eau et wc
À l'étage :2 chambres et un bureau (ou 3 chambres selon vos besoins)
Une salle d'eau
wc indépendants
Prestations prévues
Climatisation réversible
Chauffe-eau thermodynamique
Terrain piscinable
Environnement calme et résidentiel
(le budget indiqué ne comprend pas la piscine)
Informations complémentaires , norme RT2020
Le prix comprend les VRD et les viabilités, sous réserve de validation après étude technique, devis de terrassement et ajustement selon les contraintes du terrain.
Une opportunité rare de construire votre villa sur-mesure dans l'un des quartiers les plus recherchés de Sanary-sur-Mer, entre mer et commodités.
? Contactez-nous pour étudier votre projet !
Non soumis au DPE. Les informations sur les risques auxquels ce bien est exposé sont disponibles sur le site Géorisques : georisques.gouv.fr.
- Type de bien : Maison
- Surface : 117 m²
- Localisation : France - provence-alpes-cote-d-azur - Var
- Ville : Sanary-sur-Mer
- Code postal : 83110
- Annonce créée le 27/03/2026




