Vente Maison 64270, Salies-de-Béarn france 60 000 €
Descriptif du bien
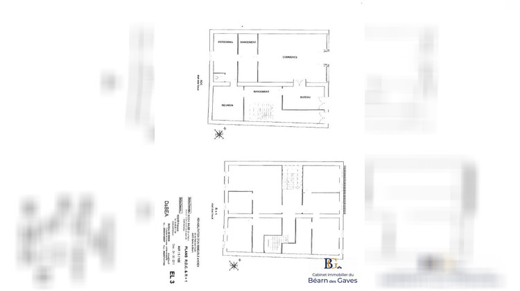
Situé en plein coeur du centre-ville de Salies-de-Béarn, cet immeuble s'inscrit dans le cadre d'un projet de réhabilitation d'envergure d'un complexe immobilier . Développant une surface d'environ 600 m², le bien s'élève sur quatre niveaux (R+3), offrant un fort potentiel de transformation et de valorisation.
Grâce à son emplacement stratégique, au sein d'un environnement dynamique et commerçant, cet ensemble immobilier permet d'envisager une opération mixte. Le rez-de-chaussée pourrait être dédié à des locaux commerciaux, favorisant l'attractivité du site, tandis que les étages supérieurs se prêtent à la création de plusieurs appartements, adaptés à une clientèle résidentielle ou à un investissement locatif.
Ce projet de réhabilitation vise à redonner vie à l'immeuble en optimisant ses volumes et ses usages, tout en participant à la dynamisation du centre-ville. Il constitue une opportunité rare pour un investisseur ou un porteur de projet souhaitant s'inscrire dans une démarche de requalification urbaine à fort potentiel.
Honoraires à la charge du vendeur. Non soumis au DPE. Les informations sur les risques auxquels ce bien est exposé sont disponibles sur le site Géorisques : georisques.gouv.fr.
.
Proposé par Cabinet immobilier Béarn des Gaves SALM Immobilier - 64270 Salies de Béarn 05 59 38 13 98 mails Achat-Vente-Location-Gestion-Syndic d'appartements et de maisons.
- Type de bien : Maison
- Surface : 600 m²
- Localisation : France - Nouvelle-Aquitaine - Pyrénées-Atlantique
- Ville : Salies-de-Béarn
- Code postal : 64270
- Annonce créée le 03/04/2026





