Vente Maison 17220, SAINTE-SOULLE france 647 000 €
Descriptif du bien
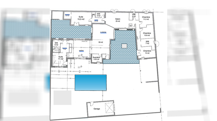
EXCLUSIVITE BLOWSENS SAINTE SOULLE - CENTRE BOURG - aux portes de La Rochelle Situation privilégiée au coeur du village - Environnement calme et sans vis-à-vis - Commerces et écoles accessibles à pied - Environnement calme et sans vis-à-vis Élégante Maison contemporaine lumineuse et conviviale d'environ 200 m2 avec piscine, deux salons et 5 chambres dont 3 suites. Cette élégante propriété familiale dévoile un cadre de vie rare, au calme absolu et sans vis-à-vis, où les espaces intérieurs et extérieurs s'articulent harmonieusement autour de terrasses intimistes et d'une piscine. Pensée dans un esprit contemporain et chaleureux, la maison offre des volumes généreux et une distribution idéale pour la vie de famille comme pour recevoir. Dès l'entrée, la maison révèle une magnifique pièce de vie de près de 60 m², baignée de lumière grâce à de larges ouvertures sur les extérieurs. La cuisine ouverte, entièrement équipée et organisée autour d'un îlot central, s'intègre parfaitement à cet espace convivial. La maison propose 5 chambres, dont trois véritables suites avec salles d'eau privatives, offrant confort et indépendance à chacun. Un art de vivre tourné vers l'extérieur La propriété s'organise autour de plusieurs espaces extérieurs soigneusement aménagés, Un patio abrité permet de profiter d'un espace de détente protégé tandis qu'un espace repas couvert au style atelier, particulièrement chaleureux. Le jardin, facile d'entretien, offre un cadre paisible et préservé de tout vis-à-vis, véritable havre de tranquillité. Buanderie Garage indépendant Piscine 4x8m Dossier complet et visite sur demande.
- Type de bien : Maison
- DPE : C - 91 à 150 kWh/².an
- GES : B - 6 à 10 kg eq CO2/².an
- Surface : 200 m²
- Localisation : France - Nouvelle-Aquitaine - Charente Maritime
- Ville : SAINTE-SOULLE
- Code postal : 17220
- Annonce créée le 24/03/2026









