Vente Maison 56510, Saint-Pierre-Quiberon france 315 300 €
Descriptif du bien
Rare : dans un éco-lotissement à 200m de la Plage, venez poser vos valises pour habiter ou investir.
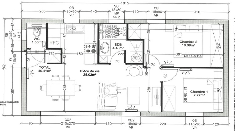
Projet de construction d'un pavillon bois de plain pied sur terrain 370m2.
Cadre exceptionnel, résidentiel, nature et calme.
Mieux qu'un appartement : Projet incluant le terrain viabilisé (182300 euros), et la construction d'un pavillon aux dernières normes d'isolation T3 (133000 euros). Maison en bois avec pompe à chaleur comprenant un séjour de 25m2, salle d'eaux, wc séparé et 2 chambres. hors branchements et frais de notaire.
Possibilité de pavillon sur mesure (sans dépasser 70m2, et uniquement en bois) et libre choix constructeur.
Nous Consulter.
Non soumis au DPE. Les informations sur les risques auxquels ce bien est exposé sont disponibles sur le site Géorisques : georisques.gouv.fr.
Votre conseiller MON BIEN A LA MER : Gérant - .fr MON BIEN A LA MER
Carte T CPI 2201 2018 000 025 040
RCP ACM IARD B1 7025278





