Vente Maison 31650, SAINT-ORENS-DE-GAMEVILLE france 289 000 €
Descriptif du bien
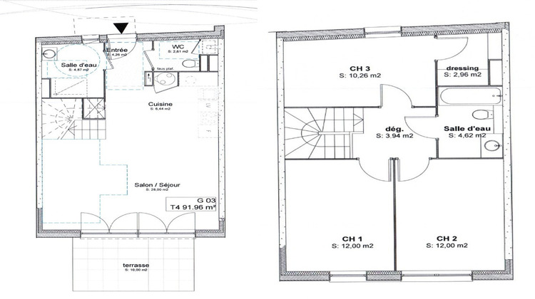
Notre agence IMMO DE FRANCE a le plaisir de vous présenter à la vente cette charmante villa T4 située dans une résidence calme, vendue libre d'occupation. D'une surface de 92 m2 et en R+1, la villa est idéalement agencée comme suit : Au rez-de-chaussée, nous retrouvons une entrée avec placard, salle d'eau et WC indépendant, le tout menant à un vaste et agréable séjour avec coin cuisine de plus de 37m2 ! Un agréable jardin de 40m2 avec terrasse exposé Sud vous permettra de profiter des beaux jours. A l'étage, un dégagement permet l'accès à 3 chambres de plus de 10 et 12m2 dont l'une avec dressing, ainsi qu'à une salle de bains avec WC. Située à proximité du centre-ville, proche des commodités, écoles, commerces et transports en commun, cette villa bénéficie d'un emplacement idéal ! Charges de copropriété : 57.99 euros /mois Taxe foncière : 1 566 euros /ans Vendue libre d'occupation. Contactez-nous ! (6.00 % honoraires TTC à la charge de l'acquéreur.) Copropriété de 155 lots (Pas de procédure en cours). Charges annuelles : 695.88 euros.
- Type de bien : Maison
- DPE : B - 51 à 90 kWh/².an
- GES : B - 6 à 10 kg eq CO2/².an
- Surface : 92 m²
- Localisation : France - Occitanie - Garonne (Haute)
- Ville : SAINT-ORENS-DE-GAMEVILLE
- Code postal : 31650
- Annonce créée le 03/03/2026








