Vente Maison 44350, Saint-Molf france 600 000 €
Descriptif du bien
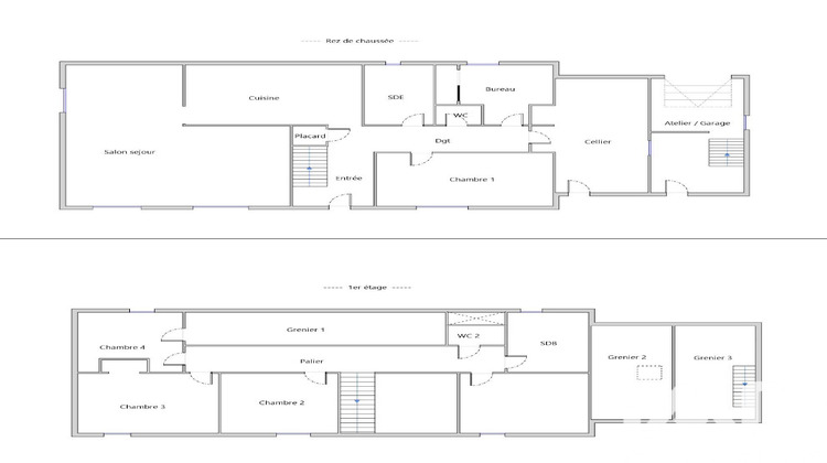
Iad France - Leïla Mahour Pelon vous propose : Le bien se compose d'une Maison principale de 150 m² avec avec 2 habitations exploitées en gîtes saisonnier sur plus de 2350 m² de terrain - SAINT-MOLFSituée dans un environnement calme et verdoyant sur la commune de Saint-Molf, cette propriété vous offre une multitude de possibilités : résidence principale, secondaire, projet familial multi-generationnel, activité libérale, développement touristique ou lieu de création artistique. Sur une parcelle de plus de 2200 m², découvrez une maison principale de 150 m² comprenant : oune entrée oun vaste salon-séjour lumineuxoune cuisine indépendante (possibilité d'ouverture sur le salon)oune salle d'eau, wcoun bureau oune chambre de plain-piedUne buanderie et un atelier complètent cette partie de la maison. À l'étage : 3 chambres, un bureau, ainsi qu'une salle de bain, et wc. Concernant l'extérieur : Grande terrasse en bois exposée SUD, 2 cabanons, un poulailler et une cabane dans les arbres pour les enfants ! Attenant à la maison, un gîte de 45 m² avec entrée indépendante et un jardin. Il comprend une pièce de vie avec cuisine, une salle d'eau et une chambre. Ce gîte peut facilement être relié à la maison principale selon votre projet. Un second gîte indépendant de 62 m² complète cette propriété. Il se compose : od'une pièce de vie avec cuisine ouverteode WC et d'une salle d'eau au rez-de-chausséeod'un garageÀ l'étage : 2 chambres et une mezzanine. Les atouts : oFort potentiel locatif (un gite classé 3 étoiles Clé Vacances,)Chiffre d'affaire disponible oGrand terrain arboré avec des arbres fruitiersoCadre de vie paisible, à proximité des plages et des marais salantsUne propriété rare sur le secteur, idéale pour un projet de vie multiple ou pour concilier habitation et activité. Honoraires d'agence à la charge du vendeur. Information d'affichage énergétique sur ce bien : classe ENERGIE C indice 178 et classe CLIMAT A indice 5. Les informations sur les risques auxquels ce bien est exposé, y compris l'obligation légale de débroussaillement, sont disponibles sur le site Géorisques : http://www.georisques.gouv.fr.La présente annonce immobilière a été rédigée sous la responsabilité éditoriale de Mme Leïla Mahour Pelon mandataire indépendant en immobilier (sans détention de fonds), agent commercial de la SAS I@D France immatriculé au RSAC de SAINT NAZAIRE sous le numéro 889126959, titulaire de la carte de démarchage immobilier pour le compte de la société I@D France SAS.Informations LOI ALUR : Honoraires charge vendeur. (gedeon_6727_32844859)
- Type de bien : Maison
- DPE : C - 91 à 150 kWh/².an
- GES : A -< 6 kg eq CO2/².an
- Surface : 195 m²
- Localisation : France - pays-de-la-loire - Loire Atlantique
- Ville : Saint-Molf
- Code postal : 44350
- Annonce créée le 19/03/2026





