Vente Maison 71620, SAINT MARTIN EN BRESSE france 1 185 000 €
Descriptif du bien
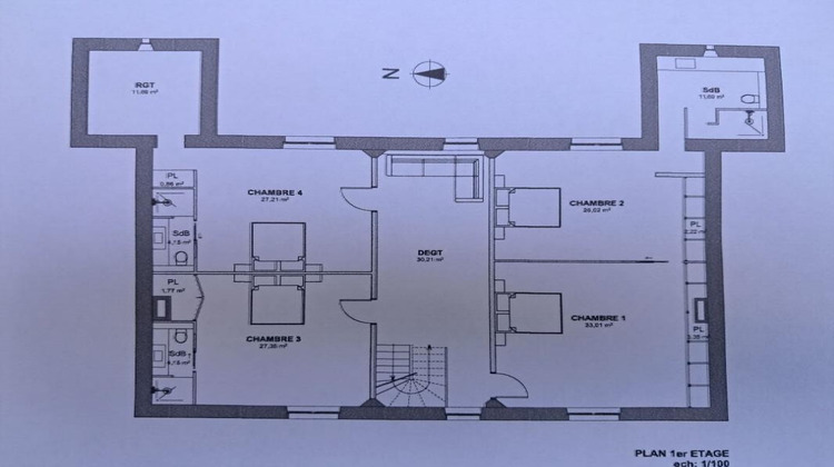
Jean-Paul Genot vous propose cette propriété d'exception située proche de Chalon-sur-Saône Ce joyau architectural érigé au 17e siècle (1625)a traversé les époques pour vous offrir un cadre de vie ou l'histoire rencontre le confort moderne. Ce château offre 522 m² habitable sur 3 niveaux ainsi que 600 m² de dépendance sur un terrain de 11000 m² clos et arboré. Rénové avec gout et de prestation haut de gamme par le maître des lieux dont c'est la profession d'architecte,nous avons 15 pièces dont 6 chambres avec rangements, 4 salles d'eau ,5 toilettes et une cuisine équipée ouverte sur salle à manger.Terrasse et pergola bioclimatique.spa et sauna.Chauffage pompe à chaleur par géothermie "3,7km de tuyaux enterrés"(Waterkotte).Fibre internet,cablage RI45.Parking environ 10 véhicules.Réserve d'eau environ 70m3.Piscinable. Concernant les portes et fenêtres,nous avons du simple vitrage,double vitrage et triple vitrage. Conformément aux souhaits du propriétaire aucune photos de l'Intérieur et de l'extérieur ne sont diffusés.Pour l'annonce photo non contractuelle purement illustrative et ne représentant pas forcément le bien. En revanche les plans sont corrects.les photos sont communiquées uniquement sur demande après un premier échange téléphonique ou par mail. Dpe:C :120 et A: 3 Taxe foncière 2035 euros Montant estimé des dépenses annuelles d'énergie pour un usage standard entre 3960 euros et 5420 euros indexées aux années 2021,2022,2023.Abonnements compris. les informations sur les risques auxquels ce bien est exposé sont disponibles sur le site:Georisque.www.georisque.gouv.fr Pour visiter et vous accompagner dans votre projet,contactez Jean Paul GENOT au 06 23 88 54 43 ou par courriel à jp.genot@proprietes-privées.com Selon l'article L.561.5 du Code Monétaire et Financier pour l'organisation de la visite,la présentation d'une pièce d'identité vous sera demandée. Cette présente annonce a été rédigée sous la responsabilité éditoriale de Jean-Paul GENOT agissant sous le statut d'agent commercial immatriculé au RSAC CHALON SUR SAONE 798527719, auprès de la SAS PROPRIETES-PRIVEES.COM,Réseau national immobilier,au capital de 44920 euros,44 ALLEE DES CINQ CONTINENTS-ZAC LE CHENE FERRE,44120 VERTOU,RCS Nantesn° 487 624 777 00040, carte professionnelle Transactions sur immeubles et fonds de commerce T et Gestion immobilière(G)n°CPI 4401 2016 000 010 388 délivrée par la CCI.Nantes-Saint Nazaire.Compte séquestre n°30932508467BPA SAINT-SEBASTIEN-SUR-LOIRE. Garantie GALIAN-SMABTP-89 rue de la Boétie.75008 Paris.n°28137J pour 2 000 000 euros pour T et 120 000 eurospour G.Assurance responsabilité civile ° de police 28137.J Mandat réf: 422156.Budget: 1185000 euros .Honoraires à charge vendeur. Le professionnel garantit et sécurise votre projet immobilier. Jean-Paul GENOT (EI) Agent Commercial - Numéro RSAC : CHALON SUR SAONE 798527719 - . Les informations sur les risques auxquels ce bien est exposé sont disponibles sur le site Géorisques : www. georisques. gouv. fr
- Type de bien : Maison
- DPE : C - 91 à 150 kWh/².an
- GES : A -< 6 kg eq CO2/².an
- Surface : 522 m²
- Localisation : France - Bourgogne-Franche-Comté - Saône-et-Loire
- Ville : SAINT MARTIN EN BRESSE
- Code postal : 71620
- Annonce créée le 04/10/2025



