Vente Maison 34380, Saint-Martin-de-Londres france 525 000 €
Descriptif du bien
EXCLUSIVITÉ -- MAISON FAMILIALE -- Coeur de village à Saint-Martin-de-Londres
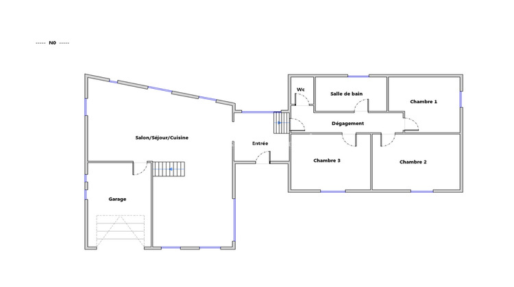
Surface : 150 m2 -- Terrain : 850 m2 -- Sans vis-à-vis
- DPE : C -- GES : A
Laissez-vous séduire par cette maison familiale pleine de charme, située au coeur du village, à seulement 1 minute à pied des commerces et des écoles. Un lieu de vie apaisant, sécurisé et facile à entretenir, idéal pour une famille en quête de confort et de sérénité.
- Un intérieur chaleureux et convivial
Grand salon-séjour avec cuisine ouverte de 67 m2
Maison très lumineuse, ouverte sur l'extérieur
Chauffage au sol + climatisation
Possibilité d'installer un poêle pour une ambiance cosy
- Côté nuit
3 chambres de 12 à 14 m2
Suite parentale à l'étage avec salle d'eau et toilette
Salle de bain familiale avec douche + baignoire d'angle
- Un extérieur pensé pour la détente
Piscine sécurisée
Terrain sans vis-à-vis, calme et agréable
Garage + stationnement 2 véhicules
Une maison qui offre un véritable sentiment de bien-être, un cadre de vie apaisant et agréable à vivre, au coeur du village.
- À découvrir rapidement -- coup de coeur assuré !
Pour plus d'informations, contacter Romain Roux -- 06 64 15 84 52 -- romainroux@thalia-patrimoine.com
Cette annonce vous est proposée par BENSALEM Eric - EI - NoRSAC: 831093216, Enregistré au Greffe du tribunal de commerce de Montpellier
Les informations sur les risques auxquels ce bien est exposé sont disponibles sur le site Géorisques : www.georisques.gouv.fr Gestion de Patrimoine & Immobilier - www.thalia-patrimoine.com





