Vente Maison 50000, SAINT-LO france 223 500 €
Descriptif du bien
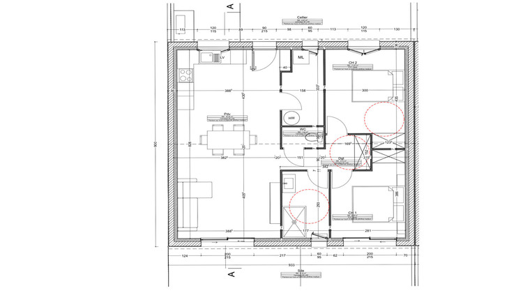
EXCLUSIVITÉ MAISON NEUVE EN COURS DE CONSTRUCTION Le Cabinet Folliot vous propose en exclusivité cette maison neuve, actuellement en cours de construction. Elle peut être acquise hors d'eau / hors d'air ou entièrement terminée, offrant ainsi une vraie flexibilité selon votre projet et votre budget. Ses atouts : Frais de notaire réduits Construction neuve, aux normes en vigueur Vie de plain-pied Comble aménageable Composition : Une pièce de vie lumineuse salon / séjour Deux chambres de plain-pied Un grand cellier Une salle d'eau avec douche Un WC indépendant Idéal pour une résidence principale ou un investissement serein dans un bien neuf. Les informations sur les risques auquels ce bien est exposé sont disponibles sur le site Géorisques : www.georisques.gouv.fr. Contact : Pierre-Emmanuel Legoupil 06 21 28 33 03 Pierre Emmanuel LEGOUPIL (EI) Agent Commercial - Numéro RSAC : 751 823 071 - COUTANCES.







