Vente Maison 33127, Saint-Jean-d'Illac france 365 000 €
Descriptif du bien
Iad France - Thibaut Faure vous propose : St Jean D'illac - Le Las
A proximité immédiate des écoles, dans un environnement résidentiel et calme.
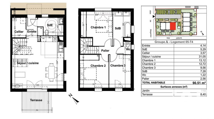
Maison de 91 m² env avec un jardin de 110 m² env + terrasse
Elle se compose rdc, d'une entrée, un cellier, une salle d'eau avec wc, une pièce de vie avec salon-séjour ouvert sur cuisine. À l'étage dégagement, 3 chambres, salle de bain et wc indépendant.
La presente annonce immobiliere vise 3 lots situés dans une copropriété de 21 lots au total et ne faisant l'objet d'aucune procédure en cours citée à l'article L. 721-1 du code de la construction et de l'habitation. Montant moyen mensuel de charges déclaré par le vendeur : 70¤ par mois (soit 840 ¤ annuel). Honoraires d'agence à la charge du vendeur.
Bien non soumis au DPE. Les informations sur les risques auxquels ce bien est exposé, y compris l'obligation légale de débroussaillement, sont disponibles sur le site Géorisques : http://www.georisques.gouv.fr.
La présente annonce immobilière a été rédigée sous la responsabilité éditoriale de M Thibaut Faure mandataire indépendant en immobilier (sans détention de fonds), agent commercial de la SAS I@D France immatriculé au RSAC de bordeaux sous le numéro 804099117, titulaire de la carte de démarchage immobilier pour le compte de la société I@D France SAS.Informations LOI ALUR : Soumis au régime de copropriété. Nombre de lots : 21. Quote part annuelle(moyenne) : 840 euros. Honoraires charge vendeur. (gedeon_6727_32203301)
- Type de bien : Maison
- Surface : 91 m²
- Localisation : France - Nouvelle-Aquitaine - Gironde
- Ville : Saint-Jean-d'Illac
- Code postal : 33127
- Annonce créée le 16/04/2026

