Vente Maison 33750, SAINT GERMAIN DU PUCH france 245 000 €
Descriptif du bien
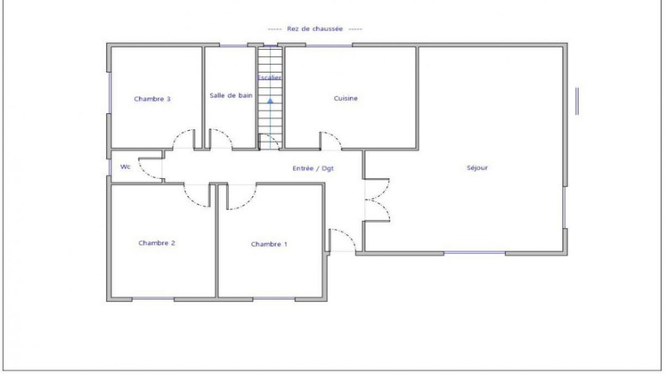
Située à Saint-Germain-du-Puch (33750), dans un environnement privilégié à proximité de Bordeaux, cette maison offre un fort potentiel pour les amateurs de rénovation et de projets personnalisés. D'une surface habitable d'environ 150 m², elle est implantée sur un terrain de 1 500 m², idéal pour profiter d'un cadre de vie agréable et spacieux. Elle se compose d'un vaste salon-salle à manger de plus de 30 m², d'une cuisine indépendante de 14 m² et de trois chambres d'environ 11 m² chacune. Un véritable atout vient compléter ce bien : une grande pièce de plus de 80 m² en rez-de-chaussée, offrant de nombreuses possibilités d'aménagement (atelier, espace de vie supplémentaire, bureau, etc.). Un garage de 50 m² vient également s'ajouter à l'ensemble, apportant un espace de stationnement et de rangement très appréciable. Cette maison à rénover représente une belle opportunité pour créer un lieu de vie à votre image, dans un secteur recherché aux portes de Bordeaux. Les informations sur les risques auxquels ce bien est exposé sont disponibles sur le site Géorisques : www.georisques.gouv.fr Prix de vente honoraires d'agence inclus : 245 000 € Prix de vente hors honoraires d'agence : 235 000 € Honoraires charge acquéreur : 10 000 € soit 4,26 % TTC de la valeur du bien hors honoraires Contactez votre consultant megAgence : Jérôme ROBIN, Tél. : 0623235493, E-mail : jerome.robin@megagence.com - EI - Agent commercial immatriculé au RSAC de LIBOURNE sous le numéro 824 874 408
- Type de bien : Maison
- DPE : E - 231 à 330 kWh/².an
- GES : E - 36 à 55 kg eq CO2/².an
- Surface : 160 m²
- Localisation : France - Nouvelle-Aquitaine - Gironde
- Ville : SAINT GERMAIN DU PUCH
- Code postal : 33750
- Annonce mise à jour le 25/04/2026





