Vente Maison 17650, SAINT DENIS D OLERON france 358 000 €
Descriptif du bien
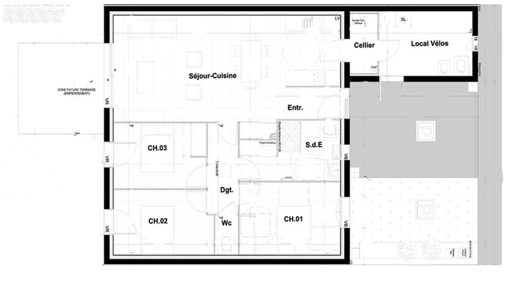
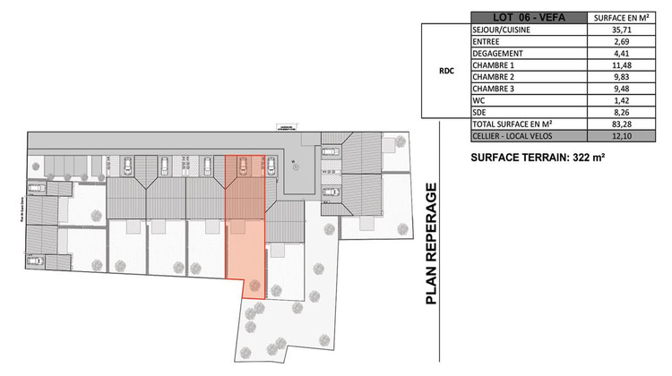
Maison Neuve en Vente en l’État de Futur Achèvement – Rue de Saint-Denis, Saint-Denis d’Oléron – Programme de « La Bétaudière »Découvrez cette charmante maison traditionnelle de 83 m² située dans un cadre paisible à proximité de la mer. Sur une parcelle de 322 m², cette maison neuve offre un espace de vie confortable et fonctionnel, idéal pour une résidence principale ou secondaire.Caractéristiques principales :Surface habitable : 83 m²Nombre de chambres : 3Parcelle : 322 m²Disposition :Entrée menant à un spacieux séjour avec cuisine ouverte, offrant un espace convivial pour vos moments en famille.Cellier attenant à la cuisine pour un maximum de praticité.Local vélo accessible depuis l’extérieur, parfait pour les amateurs de balades.Partie nuit composée de 3 chambres, chacune équipée de sa salle d’eau privative et de WC.Le cadre : Profitez d’un environnement paisible à seulement quelques pas de la mer, idéal pour ceux qui recherchent calme et dépaysement.Contact : Maisons d'en France Atlantique Saintes - Guillaume Lecaplain - Tél. 06 81 71 33 81 - www.maisons-france-atlantique.com
- Type de bien : Maison
- Surface : 83 m²
- Localisation : France - Nouvelle-Aquitaine - Charente Maritime
- Ville : SAINT DENIS D OLERON
- Code postal : 17650
- Annonce créée le 15/03/2025





