Vente Maison 07510, Saint-Cirgues-en-Montagne france 139 100 €
Descriptif du bien
ENTRE COUCOURON et LE LAC D'ISSARLES -
MAGNIFIQUE VUE SUR LE VILLAGE ET LES MONTS ENVIRONANTS -
Au coeur de la Montagne Ardéchoise, sur les hauteurs du village de SAINT-CIRGUES-EN-MONTAGNE, très réputé pour sa foire annuelle aux Champignons, maison à ossature bois offrant un potentiel habitable de 116 m2 environ, sur 2 niveaux.
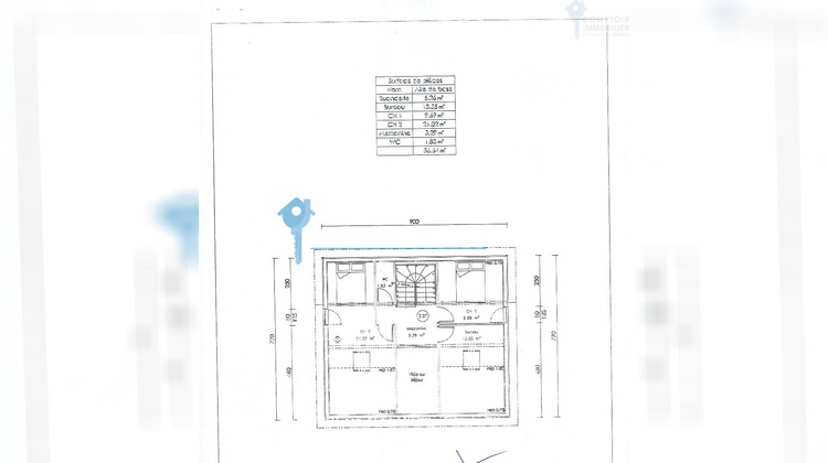
Le projet : Au rez-de-jardin, sous-bassement construit en béton banché avec 2 beaux garages pour une surface de 56 m2 environ, avec la montée d'escalier intérieure qui donne accès au rez-de-chaussée ; avec un espace jour de 48 m2 environ très lumineux, une salle de bains et un W.C. séparé ; Et, à l'étage accessible par une montée d'escaliers en bois, une mezzanine, 3 chambres et un W.C. séparé.
Le hors d'eau - hors d'air est bien fini, il vous reste à réaliser les aménagements intérieurs à votre gout, l'électricité, la plomberie et le chauffage ; Les compteurs eau et EDF sont en place et la maison est raccordée au réseau d'assainissement communal !
Pour les Amoureux de la Nature, idéal pour votre prochaine secondaire ou principale ! Un prix justifié de 139.100 EUR H.A.I., à découvrir avec Eva BENOIT, votre Conseillère en Immobilier C.I.F. ARDECHE
Les informations sur les risques auxquels ce bien est exposé sont disponibles sur le site Géorisques : www.georisques.gouv.fr COMPTOIR IMMOBILIER DE FRANCE - Plus d'informations sur cif-immo.com - « Les informations sur les risques auxquels ce bien est exposé sont disponibles sur le site Géorisques : www.georisques.gouv.fr »
- Type de bien : Maison
- Surface : 116 m²
- Localisation : France - Auvergne-Rhône-Alpes - Ardèche
- Ville : Saint-Cirgues-en-Montagne
- Code postal : 07510
- Disponible le 19/06/2023
- Annonce créée le 16/04/2025





