Vente Maison 07120, RUOMS france 325 000 €
Descriptif du bien
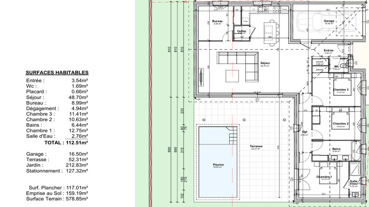
Ruoms, village touristique, accueillant et "vivant" été comme hiver. Cette maison neuve de 112m2 environ composée d'une grande pièce de vie, de 3 chambres dont une avec douche et lavabo, d'un bureau pouvant servir de quatrième chambre, salle de bain, garage avec porte électrique sur parcelle clôturée d'environ 578m2. Juste les valises à poser..... Système de chauffage et climatisation dans toutes les pièces (gainable très économique). Des panneaux photovoltaïques vont être installés très prochainement. Vous êtes à 1 minute de la zone commerciale, 3 minutes du centre ville (tous commerces ouverts à l'année, médecins, écoles et collège) la voie verte Via Ardèche de 84kms de long est toute proche. Pour une paisible retraite au soleil ou un investissement locatif, ce bien est idéal. Cette maison vous est proposée au prix de 325 000 euros , honoraires inclus (charge vendeur) DPE A (43) GES A (1) Montant estimé des dépenses annuelles d'énergie pour un usage standard entre 450 et 660 euros indexées aux années 2021, 2022 et 2023 Pour visiter et vous accompagner dans votre projet, contactez Christophe MORY, au 0641972629 ou, par courriel à c.mory@proprietes-privees.com. Selon l'article L.561.5 du Code Monétaire et Financier, pour l'organisation de la visite, la présentation d'une pièce d'identité vous sera demandée. Cette présente annonce a été rédigée sous la responsabilité éditoriale de Christophe MORY agissant sous le statut d'agent commercial immatriculé au RSAC 807856133 auprès de SAS PROPRIETES PRIVEES, au capital de 44 920 euros, ZAC LE CHÊNE FERRÉ - 44 ALLÉE DES CINQ CONTINENTS 44120 VERTOU; SIRET 487 624 777 00040, RCS Nantes. Carte Professionnelle Transactions sur immeubles et fonds de commerce (T) et Gestion immobilière (G) n°CPI 4401 2016 000 010 388 délivrée par la CCI Nantes - Saint Nazaire. Compte séquestre n°30932508467 BPA SAINT-SEBASTIEN-SUR-LOIRE (44230). Garantie GALIAN-SMABTP - 89 rue de la Boétie, 75008 Paris - n°28137 J pour 2 000 000 euros pour T et 120 000 euros pour G. Assurance responsabilité civile professionnelle par GALIAN-SMABTP n° de police 28137.J Mandat réf 414677 - Le professionnel garantit et sécurise votre projet immobilier. Christophe MORY (EI) Agent Commercial - Numéro RSAC : 807856133 - . Les informations sur les risques auxquels ce bien est exposé sont disponibles sur le site Géorisques : www. georisques. gouv. fr
- Type de bien : Maison
- DPE : A -< 51 kWh/².an
- GES : A -< 6 kg eq CO2/².an
- Surface : 112 m²
- Localisation : France - Auvergne-Rhône-Alpes - Ardèche
- Ville : RUOMS
- Code postal : 07120
- Annonce mise à jour le 27/09/2025





