Vente Maison 14340, Rumesnil france 450 000 €
Descriptif du bien
RUMESNIL - Manoir du début XIXème, composé :
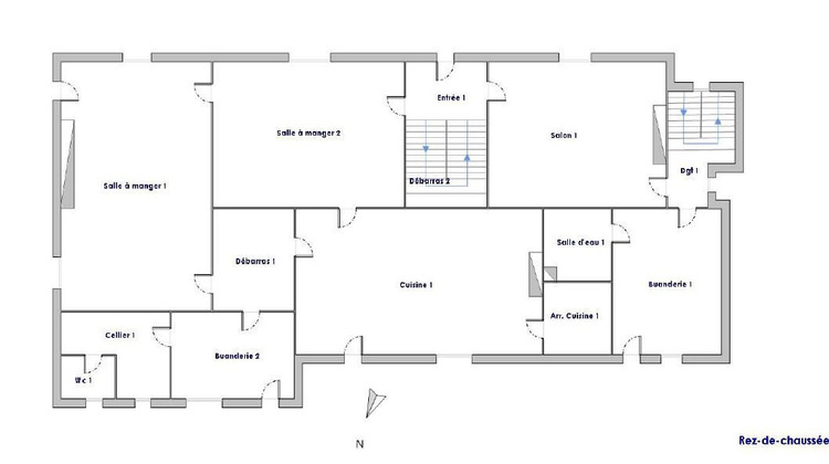
Au rez-de-chaussée : une entrée spacieuse desservant le salon, le séjour avec cheminée, salle à manger, cuisine, arrière cuisine, buanderie, annexe et WC. Pièce à usage de cuisine d'hiver et salle de douche avec WC.
L'étage : 5 chambres et une salle de douche avec WC
Au deuxième : combles avec deux pièces aménagées.
Bâtisse Normande de 69 m², classée aux monument historique avec un CU opérationnel positif pour une réhabilitation en maison.
Hangar agricole de 660m² au sol.
Sur 20 630 m² de terrain plat et arboré, dans un environnement bucolique.
Travaux de rénovation à prévoir sur l'ensemble
Honoraires à la charge du vendeur. Logement à consommation énergétique excessive : Classe énergie F, Classe climat C Montant moyen estimé des dépenses annuelles d'énergie pour un usage standard, établi à partir des prix de l'énergie de l'année 2021 : entre 3410.00 et 4670.00 . Les informations sur les risques auxquels ce bien est exposé sont disponibles sur le site Géorisques : georisques.gouv.fr.




