Vente Maison 89220, Rogny-les-Sept-Écluses france 187 000 €
Descriptif du bien
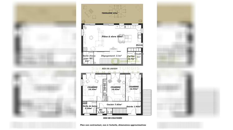
ROGNY LES SEPT ECLUSES! A moins de 2h de Paris. Située dans ce charmant village traversé par le canal de Briare découvrez cette belle et confortable maison d'environ 134m2 nichée sur son beau terrain avec vue dégagée sur le jardin et un bois offrant au rez-de-jardin: entrée sur une vaste et lumineuse pièce à vivre d'environ 50m2 avec son espace cuisine aménagée/équipée (four, plaque, hotte, lave-vaisselle, réfrigérateur) et son poêle à bois, dégagement, cellier/buanderie, chaufferie, salle d'eau avec WC, puis au rez-de-chaussée: entrée, couloir desservant 3 chambres dont 2 avec placards, salle de bains et WC séparés. A l'extérieur: dépendance attenante, terrasse avec barbecue, bûcher et abri de jardin. Le tout sur un beau jardin clos d'environ 2720 m2 avec verger (pommier, cerisier, prunier, pêcher, poirier...) et espace potager. Les atouts: double vitrage PVC avec volets roulants manuels, isolation des combles récente et pompe à chaleur vous assure un confort thermique indéniable! Reliée au tout à l'égout. N'hésitez plus pour avoir des informations complémentaires ou prendre un rendez-vous de visite à contacter l'agence. Visite virtuelle offerte! 'Les informations sur les risques auxquels ce bien est exposé sont disponibles sur le site Géorisques http://www.georisques.gouv.fr'.
- Type de bien : Maison
- DPE : B - 51 à 90 kWh/².an
- GES : A -< 6 kg eq CO2/².an
- Surface : 134 m²
- Localisation : France - Bourgogne-Franche-Comté - Yonne
- Ville : Rogny-les-Sept-Écluses
- Code postal : 89220
- Annonce mise à jour le 01/10/2025





