Vente Maison 69140, RILLIEUX-LA-PAPE france 620 000 €
Descriptif du bien
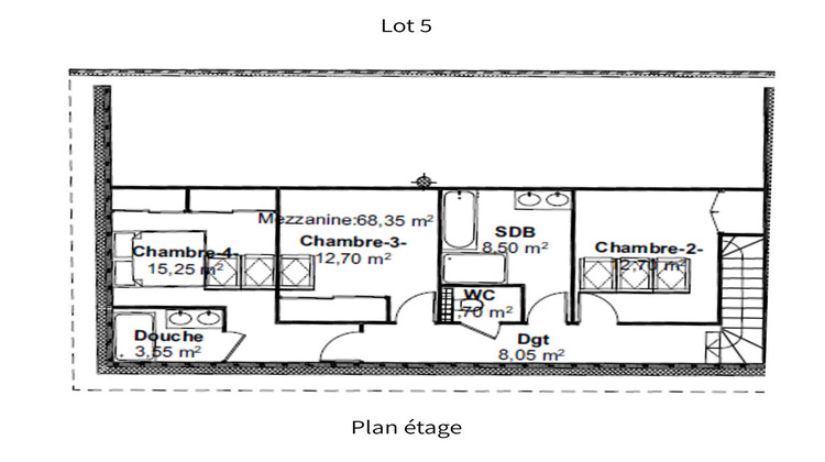
Maison style Loft 5 pièces de 178m² avec terrain piscinable de 460m² au sein d'un domaine de 4000m² idéalement situé sur Crépieux à 150 mètres de Caluire. Située au calme complet dans une ancienne tannerie réhabilitée en 2021, vous serez séduit par ce loft de 178m² vendu sous forme de plateau qui vous offre ainsi de nombreuses possibilités d'aménagements pour un intérieur sur-mesure. Vous trouverez dans l'annonce le plan d'un projet d'aménagement intérieur idéal pour un 5 pièces familiale avec : - Un premier niveau de 110m² composé d'une pièce de vie de 75m² avec cuisine ouverte, une chambre parentale et des WC séparés. - Un second niveau de 68m² composé de 3 chambres de 12 à 15m² dont une avec salle d'eau, une salle de bain, ainsi que des WC séparés. - Un terrain paysagé de 460m² pouvant accueillir une piscine. Les travaux de gros oeuvres ont déjà été réalisés (raccordement au réseau collectif des eaux usées, eaux pluviales, électricité, fibre, etc.) et les menuiseries installées (double vitrage aluminium, Vélux et volets électriques). Cela vous permettra donc de vous concentrer uniquement sur les travaux intérieurs 100% personnalisables. Située sur Crépieux à la limite de Caluire-et-Cuire, dans un quartier résidentiel et à proximité des commodités : - Pharmacie et supérette à 700m. - Ecole primaire à 900m. - Ecole Ombrosa à moins de 5km - Bus C5 (direction Jean Macé), 59 (direction de Cordeliers), et S5 (direction Caluire - Bords de Saône) à 500m. - Accès périphérique autoroute Genève, Paris, Marseille à 3 minutes.
- Type de bien : Maison
- Surface : 178 m²
- Localisation : France - Auvergne-Rhône-Alpes - Rhône
- Ville : RILLIEUX-LA-PAPE
- Code postal : 69140
- Annonce créée le 11/11/2025


