Vente Maison 37120, Richelieu france 49 000 €
Descriptif du bien
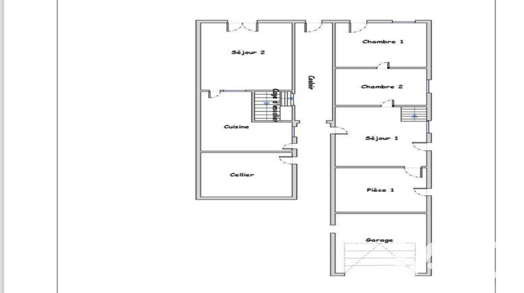
Iad France - Sophie Chenot vous propose : Belle opportunité au cOEur du centre de Richelieu !
Découvrez cet ensemble immobilier offrant de nombreuses possibilités : création de deux maisons avec cour commune, idéal pour un projet familial, locatif ou un investissement patrimonial.
Un garage complète également cet ensemble, apportant un réel atout en plein centre-ville.
Les deux maisons peuvent être indépendantes ou communicantes, selon votre projet et vos envies.
? Emplacement de choix, au cOEur de Richelieu, proche des commodités.
? Gros OEuvre à prévoir, laissant libre cours à votre imagination pour révéler tout le potentiel de ce bien.
Une belle opportunité pour les amateurs de rénovation et les investisseurs !
Honoraires d'agence à la charge du vendeur.
Bien non soumis au DPE. Les informations sur les risques auxquels ce bien est exposé, y compris l'obligation légale de débroussaillement, sont disponibles sur le site Géorisques : http://www.georisques.gouv.fr.
La présente annonce immobilière a été rédigée sous la responsabilité éditoriale de Mme Sophie Chenot mandataire indépendant en immobilier (sans détention de fonds), agent commercial de la SAS I@D France immatriculé au RSAC de POITIERS sous le numéro 919395301, titulaire de la carte de démarchage immobilier pour le compte de la société I@D France SAS.Informations LOI ALUR : Honoraires charge vendeur. (gedeon_6727_32856351)
- Type de bien : Maison
- Surface : 150 m²
- Localisation : France - centre-val-de-loire - Indre et Loire
- Ville : Richelieu
- Code postal : 37120
- Annonce créée le 16/04/2026





