Vente Maison 20243, PRUNELLI DI FIUMORBO france 399 000 €
Descriptif du bien
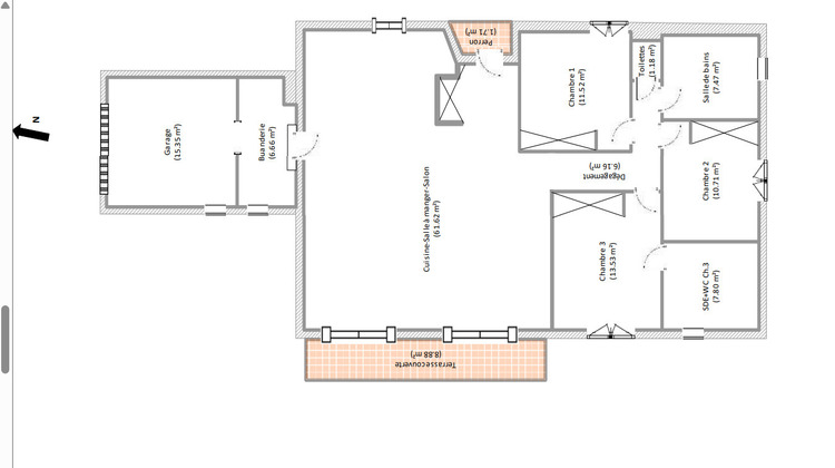
Charmante maison de plain-pied dans un village agréable de la plaine orientale, dans le secteur du Fiumorbo, idélement entre GHISONACCIA et SOLENZARA Cette jolie maison est entièrement clôturée, elle vous séduira par son confort, ses volumes et sa conception bien pensée. Elle offre un spacieux double séjour lumineux avec salon et cuisine ouverte aménagée, créant un espace de vie chaleureux et convivial. Côté nuit, vous découvrirez trois chambres, dont une belle suite parentale avec salle d'eau et WC privatifs, ainsi qu'une salle de bain indépendante et un WC séparé. La maison dispose également d'une buanderie fonctionnelle et d'un garage. A l'extérieur, vous profiterez d'une agréable terrasse couverte avec jacuzzi, idéale pour partager des moments de détente en famille ou entre amis. Pour votre confort : Climatisation Radiateurs à inertie 20 m² de panneaux solaires pour une meilleure maîtrise de la consommation énergétique 4 récupérateurs d'eau Classe énergétique B, un véritable atout pour le confort et les économies d'énergie. Une maison spacieuse, confortable et facile à vivre, idéale pour profiter d'un cadre de vie paisible. Prix de Vente : 399 000 euros. Le prix indiqué comprend les honoraires de 5,84 %, à la charge de l'acquéreur. Prix hors honoraires 377 000 euros Consommation énergétique A 64.4 kwh/m²/an Emission de gaz à effet de serre A 2 kg CO2/m²/an Estimation du cout annuel en énergie pour un usage standard entre 780 euros et 1070 euros (prix moyens des énergies indexées sur les années 2021, 2022,2023) Pour visiter et vous accompagner dans votre projet, contactez Kandy et Laurent FLAJOLLET, au 0623781869 et 0662255840 ou, par courriel à k.flajollet@proprietes-privees.com et l.flajollet@proprietes-privees.com Selon l'article L.561.5 du Code Monétaire et Financier, pour l'organisation de la visite, la présentation d'une pièce d'identité vous sera demandée. Cette présente annonce a été rédigée sous la responsabilité éditoriale de Kandy et Laurent FLAJOLLET agissant sous le statut d'agent commercial immatriculé au RSAC ajaccio 498912369 et 804573459 auprès de SAS PROPRIETES PRIVEES, au capital de 44 920 euros, ZAC LE CHÊNE FERRÉ - 44 ALLÉE DES CINQ CONTINENTS 44120 VERTOU; SIRET 487 624 777 00040, RCS Nantes. Carte Professionnelle Transactions sur immeubles et fonds de commerce (T) et Gestion immobilière (G) n°CPI 4401 2016 000 010 388 délivrée par la CCI Nantes - Saint Nazaire. Compte séquestre n°30932508467 BPA SAINT-SEBASTIEN-SUR-LOIRE (44230). Garantie GALIAN-SMABTP - 89 rue de la Boétie, 75008 Paris - n°28137 J pour 2 000 000 euros pour T et 120 000 euros pour G. Assurance responsabilité civile professionnelle par GALIAN-SMABTP n° de police 28137.J Mandat réf : 442535KFL - Le professionnel garantit et sécurise votre projet immobilier. (*) (Dans le cadre de la réglementation TRACFIN, le professionnel de l'immobilier a une obligation de vigilance. A ce titre, il doit être en mesure de vérifier l'identité du bénéficiaire effectif de l'opération dès la prise de contact et tout au long de la relation d'affaire.) (5.84 % honoraires TTC à la charge de l'acquéreur.) Kandy et Laurent FLAJOLLET (EI) Agent Commercial - Numéro RSAC : ajaccio 498912369 - . Les informations sur les risques auxquels ce bien est exposé sont disponibles sur le site Géorisques : www. georisques. gouv. fr
- Type de bien : Maison
- DPE : A -< 51 kWh/².an
- GES : A -< 6 kg eq CO2/².an
- Surface : 119 m²
- Localisation : France - Corse - Corse du sud
- Ville : PRUNELLI DI FIUMORBO
- Code postal : 20243
- Annonce créée le 21/03/2026





