Vente Maison 44770, PREFAILLES france 466 200 €
Descriptif du bien
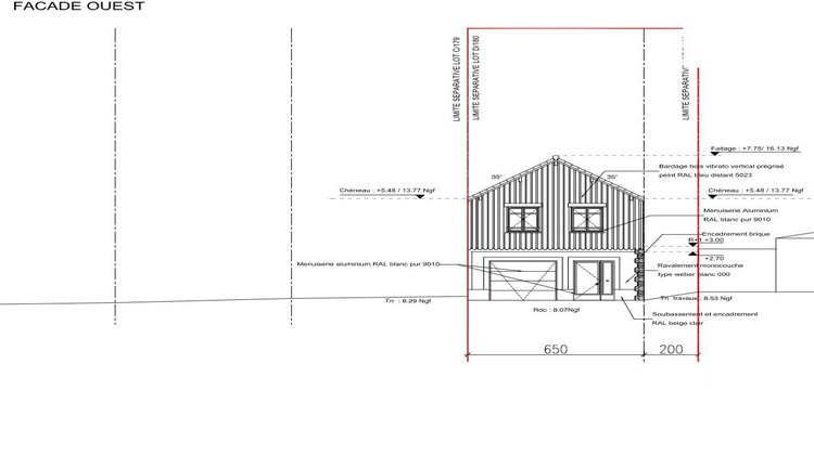
A 150 M des plages et de la pointe Saint-Gildas, Maison neuve (lot.A) avec VUE MER d'une surface habitable de 89,93 m² avec studio indépendant (potentiel locatif ) comprenant: hall d'entrée, salon cuisine donnant sur balcon 8,1 m² , salle d'eau (douche à l'italienne), WC, 2 chambres (10,7 et 10,85 m²). Studio indépendant ou communiquant en rez-de-jardin 24,23 m² (pièce à vivre, cuisine, salle d'eau WC). Garage 18,36 m². Non soumis au DPE. Prix: 466 KE HAI, dont 3,6 % TTC d'honoraires charge acquéreur (450 KE hors honoraires). Pour visiter et vous accompagner dans votre projet, contactez Hervé MAURY, au 0668280044 ou, par courriel à h.maury@proprietes-privees.com ou SMS + (Réf) . Selon l'article L.561.5 du Code Monétaire et Financier, pour l'organisation de la visite, la présentation d'une pièce d'identité vous sera demandée. Cette annonce a été réalisée sous la responsabilité éditoriale de Hervé MAURY agissant en qualité de conseiller immobilier indépendant sous portage salarial auprès de SAS PROPRIETES PRIVEES, au capital de 44 920 euros, ZAC LE CHÊNE FERRÉ - 44 ALLÉE DES CINQ CONTINENTS 44120 VERTOU; SIRET 487 624 777 00040, RCS Nantes. Carte Professionnelle Transactions sur immeubles et fonds de commerce (T) et Gestion immobilière (G) n°CPI 4401 2016 000 010 388 délivrée par la CCI Nantes - Saint Nazaire. Compte séquestre n°30932508467 BPA SAINT-SEBASTIEN-SUR-LOIRE (44230). Garantie GALIAN-SMABTP - 89 rue de la Boétie, 75008 Paris - n°28137 J pour 2 000 000 euros pour T et 120 000 euros pour G. Assurance responsabilité civile professionnelle par GALIAN-SMABTP n° de police 28137.J Mandat réf : 423318 - Le professionnel garantit et sécurise votre projet immobilier (3.60 % honoraires TTC à la charge de l'acquéreur.) Les informations sur les risques auxquels ce bien est exposé sont disponibles sur le site Géorisques : www. georisques. gouv. fr
- Type de bien : Maison
- Surface : 89 m²
- Localisation : France - pays-de-la-loire - Loire Atlantique
- Ville : PREFAILLES
- Code postal : 44770
- Annonce créée le 28/02/2026





