Vente Maison 10500, Précy-Saint-Martin france 39 000 €
Descriptif du bien
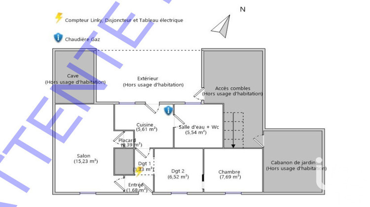
Iad France - Delphine Broekaert vous propose : Ensemble immobilier implanté sur une parcelle de 917 m² et constitué de deux habitations (70 et 43 m²) nécessitant rénovation. La première habitation présente de plain pied : anciennement cuisine, dégagement menant à l'ancienne pièce d'eau et accès combles, séjour, dégagement distribuant chambre, bureau, wc, autre pièce de type véranda. Aspects techniques : chauffage central fuel, huisseries bois simple vitrage et alu double vitrage. La seconde habitation (état vétuste) : entrée et dégagement desservant salon, cuisine, arrière-cuisine, salle d'eau avec wc, chambre. Courette à l'arrière de la maison menant à deux petites dépendances, grenier et garage (structure légère). Aspects techniques : chauffage central gaz citerne, huisseries bois simple vitrage. Assainissement à prévoir. Possibilité d'obtenir photos et vidéos complémentaires après un premier entretien téléphonique. Je reste à votre écoute et disponible pour toute demande d'informations complémentaires. Honoraires d'agence à la charge du vendeur. Information d'affichage énergétique sur ce bien : classe ENERGIE F indice 373 et classe CLIMAT F indice 99. Les informations sur les risques auxquels ce bien est exposé, y compris l'obligation légale de débroussaillement, sont disponibles sur le site Géorisques : http://www.georisques.gouv.fr.La présente annonce immobilière a été rédigée sous la responsabilité éditoriale de Mme Delphine Broekaert mandataire indépendant en immobilier (sans détention de fonds), agent commercial de la SAS I@D France immatriculé au RSAC de TROYES sous le numéro 834259038, titulaire de la carte de démarchage immobilier pour le compte de la société I@D France SAS.Informations LOI ALUR : Honoraires charge vendeur. (gedeon_6727_32577358)





