Vente Maison 44380, Pornichet france 659 000 €
Descriptif du bien
L'Agence MON BIEN A LA MER, Spécialiste du neuf en Bord de Mer, vous présente :
TRAVAUX EN COURS :
rare : petite résidence de standing à 150m de la Place centrale de Pornichet et 300m du Port/plage.
Livraison fin 2026.
Frais de notaire réduits.
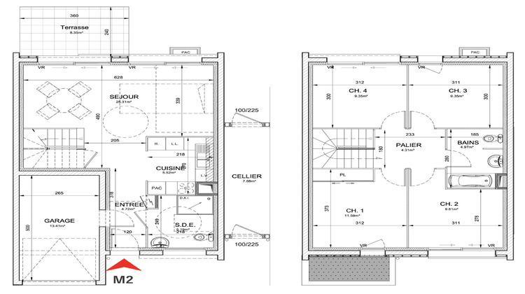
Maison T5 de 90m2 :
Séjour de 30m2, 4 Chambres, une salle de bains, une salle d'eau, deux wcs.
Garage, jardinet engazonné et clôturé.
Livrée tout finie (sauf cuisine).
Nous Consulter
Honoraires à la charge du vendeur. Non soumis au DPE. Les informations sur les risques auxquels ce bien est exposé sont disponibles sur le site Géorisques : georisques.gouv.fr.
Votre conseiller MON BIEN A LA MER : Gérant - .fr MON BIEN A LA MER
Carte T CPI 2201 2018 000 025 040
RCP ACM IARD B1 7025278
- Type de bien : Maison
- Surface : 90 m²
- Localisation : France - pays-de-la-loire - Loire Atlantique
- Ville : Pornichet
- Code postal : 44380
- Annonce créée le 20/03/2026





