Vente Maison 14130, Pont-l'Eveque france 449 900 €
Descriptif du bien
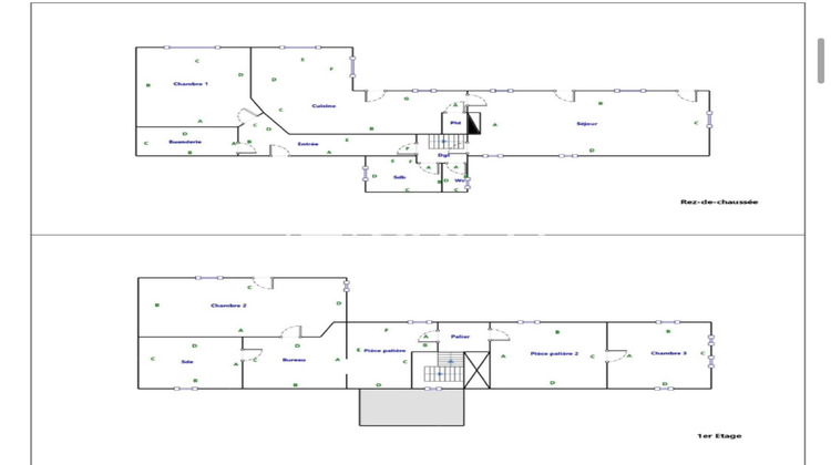
Située proche Pont l'Evêque, cette propriété normande du Pays D'auge de 132 m² offre un grand jardin de 2000 m² arboré, de plus, elle dispose d'une dépendance à finir de rénover avec déjà en place, une chambre et une salle d'eau, pouvant ensuite servir en gîte, maison d'amis ! Un garage, un abri de jardin carrelé, une cave, une serre, offre également des espaces extérieurs variés et pratiques pour profiter de l'environnement. À l'intérieur, la maison comprend en RDC : 1 grand séjour lumineux, 1 cuisine aménagée et équipée donnant sur la terrasse. 1 wc, 1 salle de bains, 1 buanderie, 1 chambre complète l'ensemble. ETAGE : 2 grands paliers, 1 bureau, 1 salle d'eau avec w. c, 2 chambres. Cette demeure traditionnelle normande allie confort et authenticité. L'espace de vie offre une atmosphère chaleureuse avec des pièces lumineuses et bien agencées. Les dépendances ajoutent une dimension supplémentaire à cette propriété. On retient la VUE dégagée sur la jolie campagne vallonnée ! Les informations sur les risques auxquels ce bien est exposé sont disponibles sur le site Géorisques : www.georisques.gouv.frPrix de vente : 449 900 ¤Honoraires charge vendeurContactez votre conseiller SAFTI : Christine VERMEULEN, Tél. : 06 87 59 50 49, E-mail : christine.vermeulen@safti.fr - EI - Agent commercial immatriculé au RSAC de LISIEUX sous le numéro 850 032 483.Informations LOI ALUR : Honoraires charge vendeur. (gedeon_26118_32805199)





