Vente Maison 29530, PLONEVEZ DU FAOU france 129 000 €
Descriptif du bien
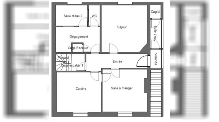
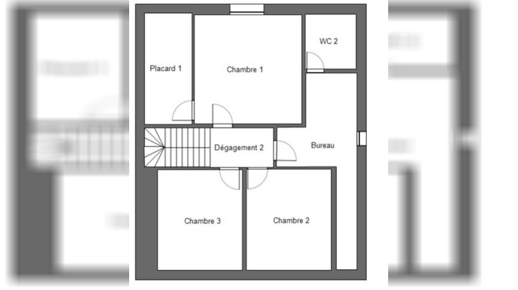
Proche du bourg, maison avec 3 chambres à l'étage, Cuisine, salon et séjour Salle d'eau et wc Sous sol complet Chauffage au gaz, double vitrage. Budget : 129 000 euros honoraires à la charge des acquéreurs. Mandat 440157 Pour visiter et vous accompagner dans votre projet, contactez Philippe Balac au 07 60 72 60 23 courriel : p.balac@proprietes-privees.com Annonce rédigée sous la responsabilité de Monsieur Philippe Balac agissant sous le statut d'agent commercial immatriculé au RSAC de Quimper auprès de la SAS PROPRIETES PRIVEES, Réseau national immobilier, au capital de 40000 euros, 44 ALLÉE DES CINQ CONTINENTS - ZAC LE CHÊNE FERRÉ, 44120 VERTOU, RCS Nantes n° 487 624 777, Carte professionnelle T et G n° CPI 4401 2016 000 010 388 CCI Nantes-Saint Nazaire. Garantie GALIAN - 89 rue de la Boétie, 75008 Paris Honoraires de 7 % TTC inclus à la charge de l'acquéreur Indice DPE : D GES : D Les informations sur les risques auxquels ce bien est exposé sont disponibles sur le site Géorisques : www. georisques.gouv.fr (8.40 % honoraires TTC à la charge de l'acquéreur.)




