Vente Maison 60128, Plailly france 408 000 €
Descriptif du bien
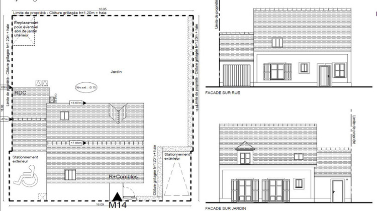
CMDEP MAISON 5 PLAILLY (60128) 3
Livraison : novembre 2026
Se renseigner pour les remises en cours
Les images de publicité ne sont pas contractuelles.
La commission de l'agence immobilière est payée par le mandant.
Le prix de vente affiche est hors frais d'agence.
C'est le prix communique par le promoteur.
CPI92012021000000226
Maison familiale individuelle non mitoyenne.
Maison individuelle en accession à la propriété.
LOT FRAMB 14
Maison 5 pièces (1 CHAMBRE AU NIVEAU BAS)
Nombre de chambres : 4
Surface Habitable 95.37m2
TERRAIN 299.00m2
408?000 EUR Prix de vente TTC (TVA 20%)
Garage couvert et Parking extérieur
Taxe foncière approximative : 1?650 EUR
Les Frais de Notaire vous sont offerts jusqu'au 31/12/2025.
Les informations sur les risques auxquels ce bien est exposé sont disponibles sur le site Géorisques : www.georisques.gouv.fr
- Type de bien : Maison
- DPE : A -< 51 kWh/².an
- GES : A -< 6 kg eq CO2/².an
- Surface : 95 m²
- Localisation : France - Hauts-de-France - Oise
- Ville : Plailly
- Code postal : 60128
- Annonce créée le 07/01/2026





