Vente Maison 33600, PESSAC france 860 000 €
Descriptif du bien
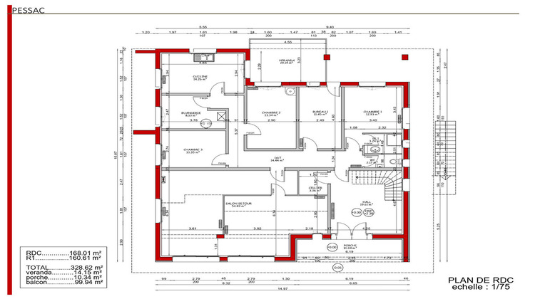
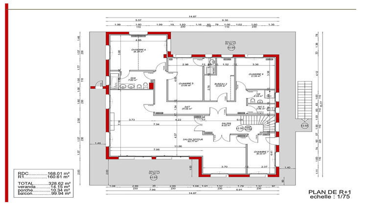
Spécial Investisseurs pour co-living. Sogimo, vous propose un investissement locatif de qualité, situé à Pessac, non loin des facultés de Pessac et Talence. Jugez vous-même. Il s'agit d'une très belle maison des années 80 d'une superficie totale de 300 m² avec marbre au sol et équipements de qualité à l'intérieur. Le bâtiment est une vraie maison de maçon construite à l'ancienne et très bien isolée. Elle a été construite en 1975, sur un terrain clos de 1750 m² . Elle est composée de deux niveaux : - Au rez-de-chaussée qui a une surface de 168 m², vous trouverez 8 pièces dont 4 chambres, une salle d'eau ,des toilettes indépendantes , une grande cuisine équipée, donnant sur une véranda fermée et un séjour double séparé par une cloison simple de 55 m² pouvant devenir 2 grandes chambres supplémentaires. - Et au premier étage, vous trouverez 7 pièces dont 4 chambres, un bureau pouvant devenir une cinquième chambre, 2 salle d'eau , une salle de bain, avec toilettes, et une deuxième toilette indépendante, et un séjour double de 61 m² pouvant devenir 2 chambres supplémentaires. Soit un total de 13 chambres pour un projet de location en meublé, pour un co-living . D'autre part, l'avant du terrain pourra disposer d'au moins 8 places de parking à créer et il est de rigueur d'imaginer que l'arrière du terrain d'une surface de 50 m² pourrait accueillir un deuxième bâtiment de deux unités T4 d'environ 100 m² habitables ou de la Création de nouvelles chambres, car l'emplacement de cette maison est vraiment idéale pour des étudiants inscrits aux l'universités toutes proches. Côté Financier, nous vous proposons d'acquérir ce bien rare sur le marché actuel de l'investissement locatif, au prix de 860.000 euros, frais d'agence inclus à la charge du vendeur, ce qui pourra générer un rendement minimum d'au moins 7% pour pouvoir atteindre un maximum de 7,2% dans l'état actuel. Bien entendu, si vous prévoyez l'extension possible dans le terrain derrière la maison, la rentabilité, ne fera que s'accroître ,et avec un coût moyen au mètre carré pour la construction neuve d'environ 1.500 euros le mètre carré de cette extension, cela augmentera d'une façon significative la rentabilité et faire de cet investissement une affaire vraiment rentable. Vous pouvez consulter toutes nos autres affaires, en cliquant sur le lien indiqué en haut de cette publicité : « Agence Sogimo autres annonces ». Ainsi vous pourrez trier par prix ou par ville et choisir l'affaire qui vous conviendra. Cliquez ci-dessous sur "voir le numéro" pour nous contacter et obtenir tous renseignements ou pour fixer un RDV de visite de ce bien. vous pourrez recevoir le dossier complet de ce bien avec photos et adresse. pour cela indiquez la référence ci-dessous dans votre demande et cliquez sur « message » avec la référence suivante : COP-JLG2-MAISON-251014.
- Type de bien : Maison
- Surface : 300 m²
- Localisation : France - Nouvelle-Aquitaine - Gironde
- Ville : PESSAC
- Code postal : 33600
- Annonce créée le 04/11/2025







