Vente Maison 33600, Pessac france 460 000 €
1 / 6
Descriptif du bien
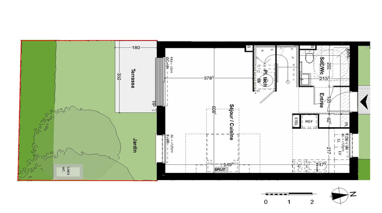
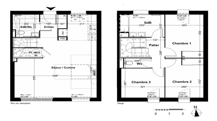
PESSAC PROCHE LYCÉE PAPE-CLÉMENT ET UNIVERSITÉS - JOLIE MAISON T4 DUPLEX - TROIS CHAMBRES - JARDIN PRIVATIF DE 45 M2 - PLACE DE PARKING PRIVATIVE - TRÈS BELLES FINITIONS - CLIMATISATION POMPE A CHALEUR. CHEZ VOUS EN JUIN , FRAIS DE NOTAIRE RÉDUITS - VOUS CHERCHEZ UNE BELLE MAISON, MODERNE AVEC TOUTES LES GARANTIES ET SURTOUT AUX DERNIÈRES NORMES...VOUS Y ÊTES, ENTREZ ET RÉSERVEZ.
DEUX MAISONS SEULEMENT : UNE A 260.000 EUR UNE SECONDE A 275.000 EUR
IMMOBILIA' AVEC VOUS, PROCHE DE VOUS' AGENCE BORDEAUX ORNANO (vis Google immobiliafpi)
Les informations sur les risques auxquels ce bien est exposé sont disponibles sur le site Géorisques : www.georisques.gouv.fr
- Type de bien : Maison
- Surface : 96 m²
- Localisation : France - Nouvelle-Aquitaine - Gironde
- Ville : Pessac
- Code postal : 33600
- Annonce créée le 26/02/2025





