Vente Maison 33600, Pessac france 390 000 €
Descriptif du bien
VOTRE NOUVELLE MAISON FAMILIALE AVEC JARDIN - PARKING
Située très proche du quartier très prisé de Pessac Centre, cette charmante maison en duplex de 89 m² offre un cadre de vie absolument idéal. Elle vous permet de profiter d'un environnement paisible tout en bénéficiant de la proximité immédiate des commerces de quartier, des établissements scolaires pour tous les âges et des transports en commun, notamment le tramway et la gare, facilitant ainsi votre quotidien.
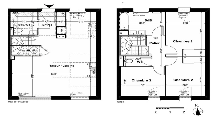
Au rez-de-chaussée, vous découvrirez un superbe espace de vie pensé pour la convivialité. Particulièrement lumineux (exposition sud), le séjour aux volumes généreux s'ouvre de plain-pied sur un agréable jardin privatif, véritable bulle de verdure pour vos moments de détente en extérieur ou vos repas en famille. Ce niveau comprend également une cuisine fonctionnelle offrant de belles possibilités d'aménagement pour les amateurs de gastronomie, ainsi qu'un premier WC indépendant.
À l'étage, l'espace nuit a été conçu pour préserver l'intimité et le repos de chacun. Il se compose de trois chambres confortables et baignées de lumière, parfaites pour aménager un espace parental, des chambres d'enfants ou un bureau pour le télétravail. Une grande salle de bain familiale, ainsi qu'un second WC indépendant, complètent harmonieusement ce niveau.
Bénéficiez également d'un stationnement privé en SUS obligatoire (20 000), un véritable atout supplémentaire qui vous assure un stationnement sécurisé et une tranquillité d'esprit inestimable dans ce secteur dynamique.
Idéalement située dans une zone extrêmement recherchée, cette maison allie à la perfection la praticité de la vie urbaine et la sérénité d'un foyer chaleureux. Qu'il s'agisse d'y voir grandir votre famille ou de réaliser un investissement patrimonial sûr et pérenne, ce bien rare sur le marché saura répondre à toutes vos attentes.
- Disponible Immédiatement
- Frais de Notaire Réduits
- RT 2012
- Garanties
- ...
Visuel non contractuel - suggestion d'aménagement
VOTRE NOUVELLE MAISON FAMILIALE AVEC JARDIN - PARKING
Honoraires à la charge du vendeur. Dans une copropriété de 13 lots. Aucune procédure n'est en cours. Classe énergie A, Classe climat A Montant moyen estimé des dépenses annuelles d'énergie pour un usage standard, établi à partir des prix de l'énergie de l'année 2025 : entre 441.00 et 597.00 . Les informations sur les risques auxquels ce bien est exposé sont disponibles sur le site Géorisques : georisques.gouv.fr.
Votre conseiller RH Patrimoine : Maxime HERVE
Agent commercial (Entreprise individuelle)
RSAC 133095555 J
RCP 13309666 J
- Type de bien : Maison
- Surface : 89 m²
- Localisation : France - Nouvelle-Aquitaine - Gironde
- Ville : Pessac
- Code postal : 33600
- Annonce mise à jour le 08/05/2026


