Vente Maison 75017, PARIS 17 france 550 000 €
Descriptif du bien
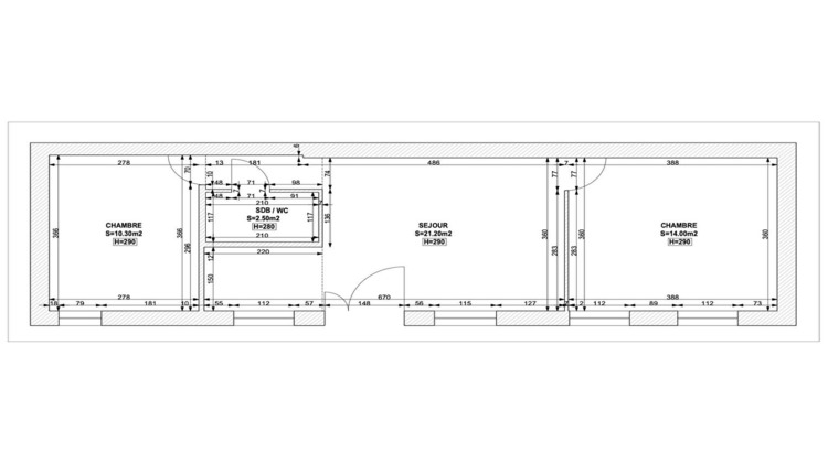
A quelques mètres de la place Saint-Ferdinand, à l'abri de l'agitation, cette maison sur cour développe 46,47 m² Carrez de plain-pied. Actuellement organisée en trois pièces, la maison se compose d'un séjour avec cuisine semi-ouverte, d'une pièce attenante de 13 m² pouvant être réunie pour créer un espace de vie plus généreux, d'une chambre de 10 m² et d'une salle d'eau avec toilettes. Une cave en sous-sol complète ce bien soumis au régime de copropriété. Professions libérales autorisées. Métro Argentine (ligne 1). Contact : Joachim ? +33 6 23 54 34 32 Copropriété de 19 lots (Pas de procédure en cours). Charges annuelles : 2323 euros. JOACHIM DRUART (EI) Agent Commercial - Numéro RSAC : 838 692 671 - Paris.
- Type de bien : Maison
- DPE : E - 231 à 330 kWh/².an
- GES : B - 6 à 10 kg eq CO2/².an
- Surface : 46 m²
- Localisation : France - ile-de-france - Paris
- Ville : PARIS 17
- Code postal : 75017
- Annonce créée le 14/09/2025


