Vente Maison 06650, Opio france 738 000 €
Descriptif du bien
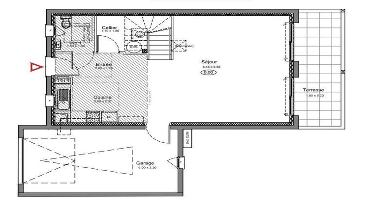
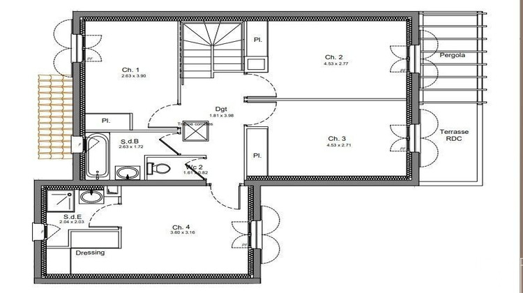
Iad France - Guillaume Sueur (06 10 35 64 71) vous propose : Maison 5P de 110 m² environ à OPIO. Au calme et proche de toutes les commodités.
Beau séjour cuisine orienté Sud-Sud Ouest de 41 m² environ donnant sur une terrasse de 11 m² environ et un jardin de 81 m² environ.
Vue dégagée
Piscine dans la résidence.
Garage de 20 m² environ et un Parking
A VOIR RAPIDEMENT !
Honoraires d'agence à la charge du vendeur. Bien non soumis au DPE. Les informations sur les risques auxquels ce bien est exposé sont disponibles sur le site Géorisques : www.georisques.gouv.fr. La présente annonce immobilière a été rédigée sous la responsabilité éditoriale de M. Guillaume Sueur EI (ID 13733), mandataire indépendant en immobilier (sans détention de fonds), agent commercial de la SAS I@D France immatriculé au RSAC de GRASSE sous le numéro 808650865, titulaire de la carte de démarchage immobilier pour le compte de la société I@D France SAS.
Retrouvez tous nos biens sur notre site internet. www.iadfrance.fr.
Informations LOI ALUR :
Honoraires charge vendeur. (gedeon_6727_31236055)
- Type de bien : Maison
- Surface : 110 m²
- Localisation : France - provence-alpes-cote-d-azur - Alpes Maritimes
- Ville : Opio
- Code postal : 06650
- Annonce mise à jour le 29/01/2026





