Vente Maison 35410, Nouvoitou france 139 360 €
Descriptif du bien
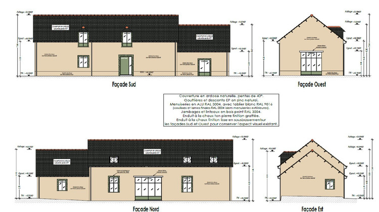
VERN SUR SEICHE : Entre Nouvoitou et Vern-sur Seiche, très beau projet de rénovation pour cette maison indépendante ancienne en pierres et terres. Permis de construire accepté pour une maison de 155 m2 habitables. Un préau à rénover sur la parcelle pouvant faire office de garage. Les réseaux de viabilisation sont en attente au bord du terrain. L'ensemble sur une parcelle d'environ 1325 m2.
Bien non soumis au DPE.
Prix : 134 000 EUR + 5360 EUR (Honoraire 4 % TTC à la charge de l'acquéreur).
Pour tous renseignements, merci de contacter C'TOUTAIN & A'LAVENNE Immobilier au 06.10.07.32.74 ou 06.63.16.76.51
Les informations sur les risques auxquels ce bien est exposé sont disponibles sur le site Géorisques : www.georisques.gouv.fr
- Type de bien : Maison
- Surface : 155 m²
- Localisation : France - Bretagne - Ile et Vilaine
- Ville : Nouvoitou
- Code postal : 35410
- Annonce créée le 03/12/2025





