Vente Maison 56690, Nostang france 399 000 €
Descriptif du bien
A 15 mns de Lanester, Cette maison d'architecte située au calme dispose :
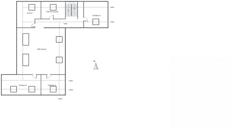
au RDC : Salon, Séjour, Cuisine Ouverte, 3 chambres, bureau avec véranda, Salle de bain, toilettes
au 1er étage : Pièce de Vie, Cuisine, Salle de bains, toilettes, 3 chambres
Le tout ouvrant sur une magnifique terrasse et sa piscine à rénover et son environnement verdoyant.
La maison offre de magnifiques volumes. Aisément divisible en 2 habitations. Elle peut permettre l'usage en gite RBNB.
Nous sommes à votre écoute pour tout renseignement
Honoraires à la charge du vendeur. Classe énergie D, Classe climat D Montant moyen estimé des dépenses annuelles d'énergie pour un usage standard, établi à partir des prix de l'énergie de l'année 2021 : entre 2924.00 et 3957.00 . Les informations sur les risques auxquels ce bien est exposé sont disponibles sur le site Géorisques : georisques.gouv.fr.
Votre conseiller eXp Realty : Luc DE MERINDOL
Agent commercial (Entreprise individuelle)
RSAC 377658471 Rennes





