Vente Maison 93130, NOISY-LE-SEC france 725 000 €
Descriptif du bien
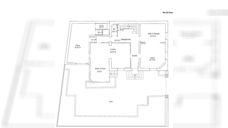
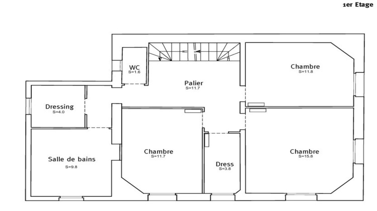
Noisy le Sec - Élégante maison familiale de caractère, 10 pièces , 5/6 chambres - 225 m² + 70 m² de sous sol sain. Au coeur d'un quartier résidentiel recherché, à proximité immédiate des commerces, écoles et transports, découvrez cette maison bourgeoise en pierres meulières entièrement repensée, alliant avec harmonie le charme de l'ancien et un confort contemporain. Un plan idéal pour la vie de famille : Rez-de-chaussée : les espaces de vie et de partage : Une entrée accueillante ouvre sur un double séjour lumineux avec salon et salle à manger, agrémenté d'une cheminée pour des moments conviviaux. La grande cuisine dinatoire, entièrement équipée, s'ouvre sur un charmant jardin d'hiver pour prolonger les repas en toutes saisons. Un atelier (ou chambre) avec accès direct sur l'extérieur, une salle d'eau et des toilettes indépendantes complètent ce niveau. Au 1er étage , l'espace parents et enfants : Un palier bibliothèque dessert trois chambres spacieuses, deux grands dressings, une salle de bains avec baignoire et douche, ainsi qu'un toilette indépendant. Chaque pièce offre un cadre intime et chaleureux, parfait pour la vie de famille. 2e étage, le cocon privatif ou espace enfants : Deux nouvelles chambres, une salle de bains et un coin lecture sur le large palier apportent calme et indépendance, idéal pour adolescents ou espace invités. Les plus : Sous-sol sain de 70 m² offrant un vaste espace de rangement, atelier, buanderie ou salle de jeux. Stationnement privatif. Terrain de 155 m² Maison lumineuse, rénovée avec goût, à la fois fonctionnelle et pleine de charme. Un bien rare sur le secteur, parfait pour une grande famille à la recherche d'espace, de confort et d'un cadre de vie serein. Métro ligne 11 et RER à 10 mn à pied (30 mn de Paris) Chatelet / Gare du Nord - Tram en fin 2026 (3.57 % honoraires TTC à la charge de l'acquéreur.)
- Type de bien : Maison
- DPE : E - 231 à 330 kWh/².an
- GES : E - 36 à 55 kg eq CO2/².an
- Surface : 225 m²
- Localisation : France - ile-de-france - Seine Saint Denis
- Ville : NOISY-LE-SEC
- Code postal : 93130
- Annonce créée le 31/03/2026









