Vente Maison 01120, NIEVROZ france 493 000 €
Descriptif du bien
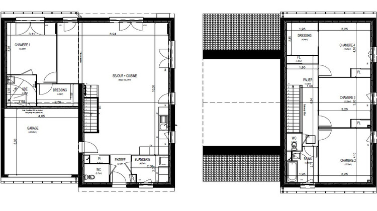
au coeur de Niévroz, à 7 minutes à pied de la Mairie, La résidence profite d'un emplacement privilégié, calme et résidentiel. Nichée dans un cadre verdoyant, llle offre la sérénité d'un quartier paisible tout en restant proche des commodités du quotidien. je vous propose à la vente cette ravissante maison de 133,65m² qui saura vous séduire par sa situation. En bas, vous trouverez, une entrée, un séjour avec sa cuisine américaine donnant sur un beau jardin de 675m² , une buanderie, une suite parentale avec salle d'eau et un wc indépendant. A l'étage, une salle de bains, trois chambres ainsi qu'un WC indépendant. La maison bénéficie d'un garage et d'une place de parking. Bâtiment basse consommation Contactez Grégory pour plus d'informations au O6.69.26.64.26 Visuel non contractuel Copropriété de 36 lots - dont 36 lots habitation. Charges annuelles : 250 euros.
- Type de bien : Maison
- GES : B - 6 à 10 kg eq CO2/².an
- Surface : 148 m²
- Localisation : France - Auvergne-Rhône-Alpes - Ain
- Ville : NIEVROZ
- Code postal : 01120
- Annonce mise à jour le 31/03/2026








