Vente Maison 01700, NEYRON france 270 000 €
Descriptif du bien
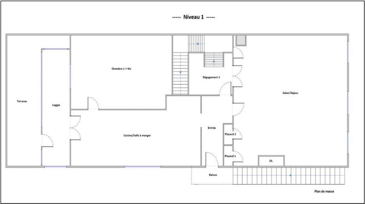
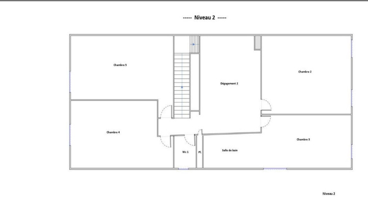
Située en plein coeur de Miribel, cette maison de ville offre un potentiel exceptionnel après rénovation. A deux pas des commerces, des écoles et des transports, elle bénéficie d'un emplacement idéal, à seulement quelques minutes à pied de la gare reliant Lyon Part-Dieu en 10 minutes. D'une superficie totale de 198 m² répartis sur trois niveaux, cette bâtisse invite à une réinvention complète de ses espaces, laissant libre cours aux projets de réaménagement. Au rez-de-chaussée, un premier niveau de plain-pied avec entrée indépendante sur rue offre la possibilité d'aménager un appartement, un local professionnel ou d'accueillir une profession libérale. Le premier étage séduit avec sa terrasse de 13 m² côté cour, apportant un agréable espace extérieur. Un escalier intérieur mène au dernier niveau. différentes configurations sont envisageables pour repenser l'ensemble des volumes et créer un intérieur sur-mesure. En complément, une belle cave voûtée ainsi qu'un garage viennent enrichir ce bien rare à fort potentiel. Une opportunité unique de partir d'une page blanche et de façonner un projet à votre image. CLASSE ENERGIE : F / CLASSE CLIMAT : F Montant moyen estimé des dépenses annuelles d'énergie pour un usage standard, établi à partir des prix de l'énergie de l'année 2023 : 3810 euros et 5200 euros. Contact : Morgan - 06 16 35 84 66 Morgan ROCFORT (EI) Agent Commercial - Numéro RSAC : 509 970 729 - Bour-en-Bresse.
- Type de bien : Maison
- DPE : F - 331 à 450 kWh/².an
- GES : F - 56 à 80 kg eq CO2/².an
- Surface : 198 m²
- Localisation : France - Auvergne-Rhône-Alpes - Ain
- Ville : NEYRON
- Code postal : 01700
- Annonce créée le 04/03/2025







