Vente Maison 37370, Neuvy-le-Roi france 131 000 €
Descriptif du bien
Neuvy-le-Roi ( 37370 ) 20 min de Tours Nord Opportunité Investisseur
Authentique longère à rénover avec fort potentiel de division
Maeva VIVIEN, conseillère en immobilier indépendante ( O6.36.82.75.60), vous propose cette charmante maison de plain-pied à fort potentiel locatif, située en sortie de village, dans un environnement calme et verdoyant.
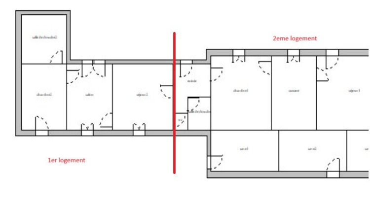
Idéal investisseur : Le bien se compose d'une maison principale à rénover, avec possibilité de division en 2 logements indépendants grâce à sa configuration et à son terrain constructible. Un vrai projet à valeur ajoutée !
Composition actuelle environ 130m2
2 entrées
Salon
Cuisine
3 chambres
possibilité de faire une chambre à l'étage
1 Salle d'eau
2 WC
Extérieurs :
Terrain clos et arboré d'environ 1100m2 constructible
Plusieurs dépendances attenantes à la maison
Garage (1 voiture)
Atouts supplémentaires :
Une partie du double vitrage déjà installée
Isolation du grenier réalisée
Bien raccordé au tout-à-l'égout
Commune dynamique avec écoles, collège, crèche, commerces, pharmacie, bar-tabac et bureau de poste à proximité.
Vous êtes investisseur ou bricoleur à la recherche d'un projet à fort rendement ? Ce bien est une opportunité rare à visiter sans tarder !
Contactez Maeva VIVIEN au O6.36.82.75.60 pour organiser une visite.
Les informations sur les risques auxquels ce bien est exposé sont disponibles sur le site Géorisques : www.georisques.gouv.fr.
La présente annonce immobilière a été rédigée sous la responsabilité éditoriale de MME VIVIEN MAEVA , mandataire indépendant en immobilier (sans détention de fonds), agent commercial de la SARL INITIAL IMMOBILIER immatriculé au RSAC de Tours titulaire de la carte de démarchage immobilier pour le compte de la société INITIAL IMMOBILIER
- Type de bien : Maison
- DPE : F - 331 à 450 kWh/².an
- GES : C - 11 à 20 kg eq CO2/².an
- Surface : 130 m²
- Localisation : France - centre-val-de-loire - Indre et Loire
- Ville : Neuvy-le-Roi
- Code postal : 37370
- Annonce créée le 16/07/2025





