Vente Maison 44300, Nantes france 395 000 €
Descriptif du bien
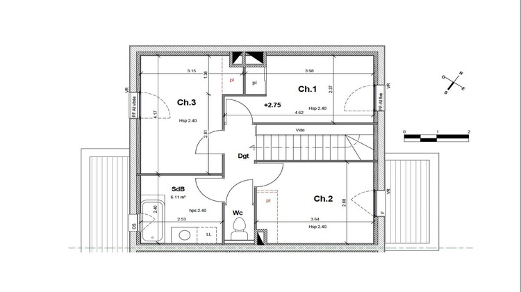
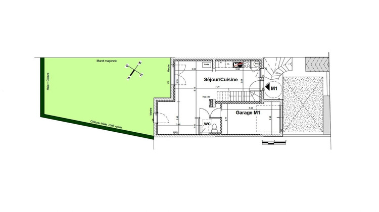
Landreau - Venez découvrir cette maison en VEFA de 79 m² en copropriété. Proche du tramway, des commerces, et des écoles, cette localisation privilégiée permet un accès facile aux services essentiels du quotidien, tout en offrant un environnement agréable et familial pour ses habitants. Elle présente une superficie habitable de 80 m² répartie en 4 pièces dont 3 chambres. Avec une grande pièce de vie traversante, cette maison comprend un jardin de 65 m² et un WC indépendant à chaque étage. Son aspect pratique et moderne, la proximité des commodités et des écoles font de ce bien un choix idéal pour une famille désirant s'installer dans un environnement accueillant et fonctionnel. Livrable début 2026.
Le bien comprend 1 lot, et il est situé dans une copropriété de 60 lots (il n'y a pas de charges courantes liées à la copropriété et le syndicat des copropriétaires ne fait pas l'objet d'une procédure citée à l'article L. 721-1 du code de la construction et de l'habitation).
Les informations sur les risques auxquels ce bien est exposé sont disponibles sur le site Géorisques : www.georisques.gouv.fr
Prix de vente : 395 000 ¤
Honoraires charge vendeur
Contactez votre conseiller SAFTI : Nicolas RETIERE, Tél. : 06 98 00 63 63, E-mail : nicolas.retiere@safti.fr - EI - Agent commercial immatriculé au RSAC de NANTES sous le numéro 823209176.
Informations LOI ALUR :
Soumis au régime de copropriété.
Nombre de lots : 60.
Honoraires charge vendeur. (gedeon_26118_32239825)
- Type de bien : Maison
- Surface : 80 m²
- Localisation : France - pays-de-la-loire - Loire Atlantique
- Ville : Nantes
- Code postal : 44300
- Annonce créée le 05/02/2026


