Vente Maison 68250, Munwiller france 265 000 €
Descriptif du bien
Profitez d'une opportunité rare : l'acquisition de cette maison vous permet de bénéficier de frais de notaire réduits à 2,5 %.
Située à Munwiller, charmante commune idéalement placée entre Ensisheim, Meyenheim et Réguisheim, cette maison bénéficie d'un emplacement stratégique, avec un accès facile aux principaux axes routiers menant vers Colmar, Mulhouse et Guebwiller.
Cette maison est proposée en prêt à décorer (PAD), vous offrant la liberté de personnaliser les finitions intérieures selon vos envies et votre style.
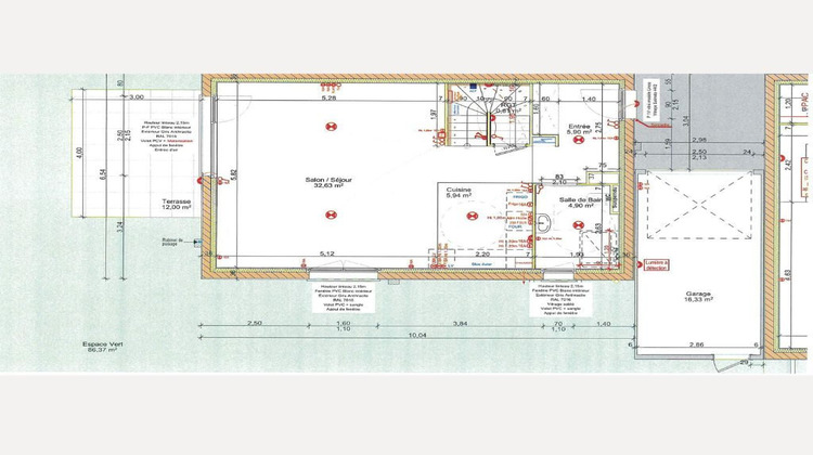
Au rez-de-chaussée, elle se compose d'une entrée, d'une cuisine ouverte sur un lumineux salon-séjour avec accès direct à la terrasse, ainsi qu'une salle d'eau avec WC.
À l'étage, un palier dessert trois chambres et une salle de bain avec WC.
Un garage complète le bien.
Côté confort, la maison est parfaitement équipée : isolation des murs, des combles et des menuiseries, ainsi qu'une pompe à chaleur avec chauffage au sol, garantissant une excellente performance énergétique et un confort optimal tout au long de l'année.
Un bien idéal pour une famille ou un couple souhaitant s'installer dans un environnement calme et résidentiel, tout en restant à proximité des grandes villes et des commodités.
Honoraires à la charge du vendeur. Classe énergie A, Classe climat A Montant estimé des dépenses annuelles d'énergie pour un usage standard : entre 470.00 et 710.00 sur les années 2021, 2022 et 2023 (abonnements compris). Les informations sur les risques auxquels ce bien est exposé sont disponibles sur le site Géorisques : georisques.gouv.fr.
Votre conseiller Immobilière de la Plaine d'Alsace : Jennifer LEPAUL
Agent commercial (Entreprise individuelle)
RSAC 927918946
- Type de bien : Maison
- DPE : A -< 51 kWh/².an
- GES : A -< 6 kg eq CO2/².an
- Surface : 100 m²
- Localisation : France - Grand Est - Rhin (Haut)
- Ville : Munwiller
- Code postal : 68250
- Annonce mise à jour le 20/03/2026



