Vente Maison 06250, Mougins france 6 700 000 €
Descriptif du bien
Iad France - Salvino Di Pietra vous propose : Située au cOEur du prestigieux domaine Les Parcs de Mougins (sécurisé 24h / 24 et 7j / 7) cette propriété entièrement rénovée en 2025 offre un cadre de vie rare, au calme absolu, dans un environnement verdoyant et sans vis-à-vis.
Édifiée sur trois niveaux, la villa séduit par ses volumes spectaculaires, sa luminosité et la qualité remarquable de ses prestations.
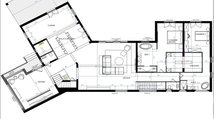
Dès l'entrée au rez-de-chaussée, un hall avec vestiaire s'ouvre sur une pièce de vie majestueuse aux proportions impressionnantes.
Séjour, salle à manger et cuisine américaine entièrement équipée avec office s'articulent dans un espace totalement décloisonné, baigné de lumière grâce aux larges baies vitrées donnant sur une vaste terrasse et la piscine.
Deux suites parentales avec salle de bains et dressing, ainsi que deux toilettes invités indépendantes viennent parfaire le confort de ce niveau.
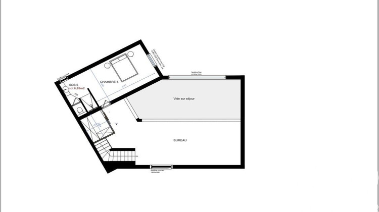
À l'étage, une large mezzanine aménagée en bureau avec dressing indépendant surplombe les espaces de vie.
Une suite parentale supplémentaire avec salle d'eau vient compléter l'étage.
Au rez-de-jardin, deux nouvelles suites parentales avec salle d'eau et toilettes privatives.
Une grande cave à vin, un garage et son dégagement totalisant plus de 70 m² et pour finir, nous trouverons une grande buanderie indépendante et une vaste pièce aménagée en salle de jeux et cinema.
La propriété implantée sur un jardin paysager de plus de 2 600 m², dispose de trois vastes terrasses et d'une piscine d'environ 80 m².
Une propriété rare, alliant élégance contemporaine, volumes remarquables et cadre de vie privilégié. Les espaces extérieurs profitent d'une vue et d'un cadre naturel boisé, garantissant intimité et sérénité.
Ce bien d'execption séduira les acquéreurs en quête de discrétion, de confort absolu et d'un environnement résidentiel parmi les plus recherchés de Mougins.
Honoraires d'agence à la charge du vendeur.
Information d'affichage énergétique sur ce bien : classe ENERGIE A indice 46 et classe CLIMAT A indice 1. Les informations sur les risques auxquels ce bien est exposé, y compris l'obligation légale de débroussaillement, sont disponibles sur le site Géorisques : http://www.georisques.gouv.fr.
La présente annonce immobilière a été rédigée sous la responsabilité éditoriale de M Salvino Di Pietra mandataire indépendant en immobilier (sans détention de fonds), agent commercial de la SAS I@D France immatriculé au RSAC de FREJUS sous le numéro 479340853, titulaire de la carte de démarchage immobilier pour le compte de la société I@D France SAS.
Informations LOI ALUR :
Honoraires charge vendeur. (gedeon_6727_32759039)
- Type de bien : Maison
- DPE : A -< 51 kWh/².an
- GES : A -< 6 kg eq CO2/².an
- Surface : 422 m²
- Localisation : France - provence-alpes-cote-d-azur - Alpes Maritimes
- Ville : Mougins
- Code postal : 06250
- Annonce créée le 26/02/2026





