Vente Maison 34080, Montpellier france 259 000 €
Descriptif du bien
Iad France - Thomas Normand (06 03 57 80 61) vous propose : MAISON 2 CHAMBRES + BUREAU - TRIPLEX - JARDIN - PLACE DE PARKING - IDEAL PRIMO-ACCEDANT - INVESTISSEUR - ELIGIBLE DEFICIT FONCIER - FIN DES TRAVAUX FEVRIER 2026
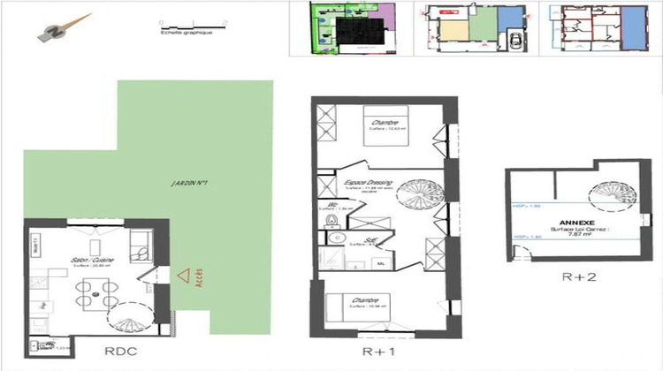
Sur la commune de Montpellier, quartier Alco, je vous propose cette maison de 63,40 m² environ avec son jardin privatif de 60 m² environ.
Au rez-de-chaussée, vous entrez sur la pièce de vie avec sa cuisine ouverte et ses toilettes séparées.
Au 1er étage, un dressing distribue les 2 chambres ainsi que la salle de bain et des toilettes séparées.
Au 2ème et dernier étage, un bureau mansardé et spacieux de 16 m² environ au sol (soit 8 m² environ Loi Carrez)
A l'extérieur, vous profiterez d'un jardin clos et d'une place de parking.
Cette maison offre tout le confort moderne avec économie d'énergie, isolation thermique et phonique dans un secteur prisé proche des hôpitaux et des facultés de Pharmacie et Paul Valéry.
La réception des travaux est prévue pour février 2025 et l'optimisation fiscale peut être étudiée et calculée au cas par cas.
Honoraires d'agence à la charge du vendeur. Bien non soumis au DPE. Les informations sur les risques auxquels ce bien est exposé sont disponibles sur le site Géorisques : www.georisques.gouv.fr. La présente annonce immobilière a été rédigée sous la responsabilité éditoriale de M. Thomas Normand EI (ID 72879), mandataire indépendant en immobilier (sans détention de fonds), agent commercial de la SAS I@D France immatriculé au RSAC de MONTPELLIER sous le numéro 788464758, titulaire de la carte de démarchage immobilier pour le compte de la société I@D France SAS.
Retrouvez tous nos biens sur notre site internet. www.iadfrance.fr.
Informations LOI ALUR :
Honoraires charge vendeur. (gedeon_6727_31609697)





