Vente Maison 82290, Montbeton france 262 000 €
Descriptif du bien
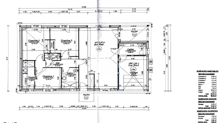
À vendre sur la commune recherchée de Montbeton, dans un lotissement intimiste de 8 lots seulement, découvrez cette maison neuve de 100 m², alliant confort moderne, belles prestations et emplacement privilégié.
Des volumes bien pensés et des prestations de qualité
Une pièce de vie lumineuse de 40 m² avec salon, salle à manger et cuisine ouverte
3 chambres, dont :
Une suite parentale avec dressing et salle d'eau privative
3 chambres dont 2 de plus de 12 et 13 m² incluant une suite parentale avec dressing et salle d'eau
Une salle de bains familiale de 6 m²
Un cellier attenant à la cuisine
Un garage de 15 m²
Une terrasse couverte, idéale pour profiter des extérieurs en toute saison
Maison neuve conforme à la norme RE2020
Excellente performance énergétique
Isolation renforcée et équipements modernes pour de réelles économies d'énergie
Garantie décennale en cours
Un cadre de vie agréable et pratique
Implantée sur une parcelle de 571 m², cette maison bénéficie d'un environnement calme, dans un petit lotissement résidentiel à taille humaine, à proximité immédiate des écoles, commerces et commodités.
À seulement 10 minutes de Montauban, avec un accès rapide aux grands axes.
Une belle opportunité à Montbeton, idéale pour une famille souhaitant s'installer dans une maison clé en main, moderne et bien située.
Contactez moi dès maintenant pour organiser une visite !
Honoraires à la charge du vendeur. DPE en cours. Les informations sur les risques auxquels ce bien est exposé sont disponibles sur le site Géorisques : georisques.gouv.fr.
Votre conseiller We Invest France : Romain Cassan
Agent commercial (Entreprise individuelle)
RSAC 749 908 349 MONTAUBAN
- Type de bien : Maison
- Surface : 99 m²
- Localisation : France - Occitanie - Tarn et Garonne
- Ville : Montbeton
- Code postal : 82290
- Annonce créée le 06/03/2026





