Vente Maison 82000, Montauban france 379 900 €
Descriptif du bien
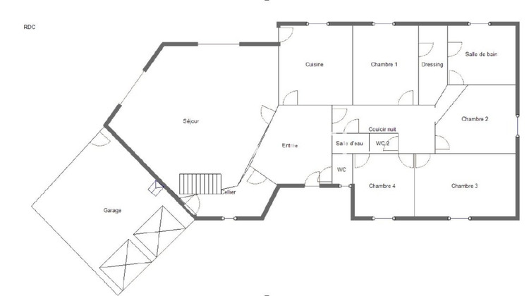
Située à Montauban dans le secteur prisé de Saint Martial, éloignée de la route, cette propriété est à proximité de toutes les commodités de la ville et axes routiers majeurs. Le cadre verdoyant et boisé offre un bel havre de paix, sans vis-à-vis, idéal pour les amoureux de la nature et de la tranquillité. À l'extérieur, la maison est implantée sur 2317 m² de terrain, avec à la vente son terrain accolé de 9883 m² boisé dont 2000 m² constructible pour vos futurs projets. Son double garage de 40 m² en plus de sa vaste cour en graviers offrent un grand espace de stationnement. Enfin sa belle piscine de 32 m² ravira petits et grands pour passer de bons moments rafraichissants. À l'intérieur, cette spacieuse maison construite en 1993 de plain pied de 180 m² (140 m² + 40 m² de mezzanine) offre un agencement harmonieux. Elle comprend 6 pièces dont 4 chambres. Ses 2 toilettes et 2 salles de bain contribuent au confort quotidien. L'espace de vie généreux et lumineux est idéal pour accueillir famille et amis ! Cette belle maison n'attend que vous ! Les informations sur les risques auxquels ce bien est exposé sont disponibles sur le site Géorisques : www.georisques.gouv.frPrix de vente : 379 900 ¤Honoraires charge vendeurContactez votre conseiller SAFTI : Rémi PESSET, Tél. : 06 80 56 16 28, E-mail : remi.pesset@safti.fr - EI - Agent commercial immatriculé au RSAC de MONTAUBAN sous le numéro 942599630.Informations LOI ALUR : Honoraires charge vendeur. (gedeon_26118_32786998)
- Type de bien : Maison
- DPE : D - 151 à 230 kWh/².an
- GES : D - 21 à 35 kg eq CO2/².an
- Surface : 180 m²
- Localisation : France - Occitanie - Tarn et Garonne
- Ville : Montauban
- Code postal : 82000
- Annonce créée le 05/03/2026





