Vente Maison 33580, Monségur france 169 980 €
Descriptif du bien
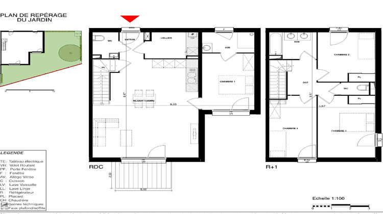
MONSEGUR (33480) est à 1H30 de Bordeaux mais vous pouvez ici vous offrir une maison T5 neuve de plus de 115M2 et disponible avec Frais de notaire offerts* sur votre maison neuve prête à emménager ! Prête à accueillir ses nouveaux propriétaires, cette maison neuve familiale T5 offre un cadre de vie idéal dans le charmant village de Monségur, réputé pour son patrimoine architectural. Orientée au sud, elle dispose d'un jardin privatif avec terrasse. Dès l'entrée, vous serez séduit par son agencement : un cellier, des WC avec lave-mains, et un bel espace de vie lumineux donnant sur le jardin avec cuisine ouverte . Une suite parentale complète ce niveau, avec une chambre et sa salle d'eau privative. À l'étage, trois chambres confortables, dont deux avec placards intégrés, une salle de bains équipée d'une baignoire et d'une double vasque, ainsi qu'un WC séparé. Deux places de stationnement privatives sont situées juste devant la maison. La maison s'intègre dans une résidence neuve, calme et verdoyante, avec une aire de jeux arborée où les enfants peuvent s'amuser en toute sécurité. Un investissement patrimonial ou locatif de qualité. De Monségur on rejoint facilement Sauveterre de Guyenne , La Réole et Duras.
C'est la dernière, dépéchez vous...appelez IMMOBILIA FPI au 06 63 47 14 01
Les informations sur les risques auxquels ce bien est exposé sont disponibles sur le site Géorisques : www.georisques.gouv.fr
- Type de bien : Maison
- Surface : 115 m²
- Localisation : France - Nouvelle-Aquitaine - Gironde
- Ville : Monségur
- Code postal : 33580
- Disponible le 01/08/2025
- Annonce créée le 20/08/2025

