Vente Maison 33380, Mios france 335 000 €
Descriptif du bien
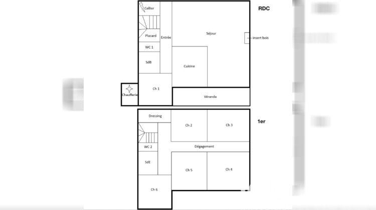
Iad France - Sandrine Grau vous propose : Maison Traditionnelle à rafraichir située à 4 km du centre de Mios. Construite en 1974, cette demeure spacieuse de 189 m² environ habitable répartie sur 2 niveaux offre un potentiel incroyable pour réaliser vos projets de vie.
Au rez-de-chaussée, vous trouverez un séjour lumineux de plus de 50 m² environ, une grande cuisine, un bureau, une chambre, une salle de bain, un wc et une véranda offrant une vue sur le jardin.
L'étage vous offre 6 chambres une salle d'eau et un wc.
Côté extérieur, profitez d'un jardin exposé sud-ouest pour des moments de détente en plein air.
Contactez-moi (Je privilégie l'inter-cabinet)
Honoraires d'agence à la charge du vendeur.
Information d'affichage énergétique sur ce bien : classe ENERGIE D indice 197 et classe CLIMAT D indice 30. Les informations sur les risques auxquels ce bien est exposé, y compris l'obligation légale de débroussaillement, sont disponibles sur le site Géorisques : http://www.georisques.gouv.fr.
La présente annonce immobilière a été rédigée sous la responsabilité éditoriale de Mme Sandrine Grau mandataire indépendant en immobilier (sans détention de fonds), agent commercial de la SAS I@D France immatriculé au RSAC de BORDEAUX sous le numéro 349331488, titulaire de la carte de démarchage immobilier pour le compte de la société I@D France SAS.Informations LOI ALUR : Honoraires charge vendeur. (gedeon_6727_32806775)
- Type de bien : Maison
- DPE : D - 151 à 230 kWh/².an
- GES : D - 21 à 35 kg eq CO2/².an
- Surface : 186 m²
- Localisation : France - Nouvelle-Aquitaine - Gironde
- Ville : Mios
- Code postal : 33380
- Annonce créée le 16/04/2026





