Vente Maison 07400, Meysse france 127 000 €
Descriptif du bien
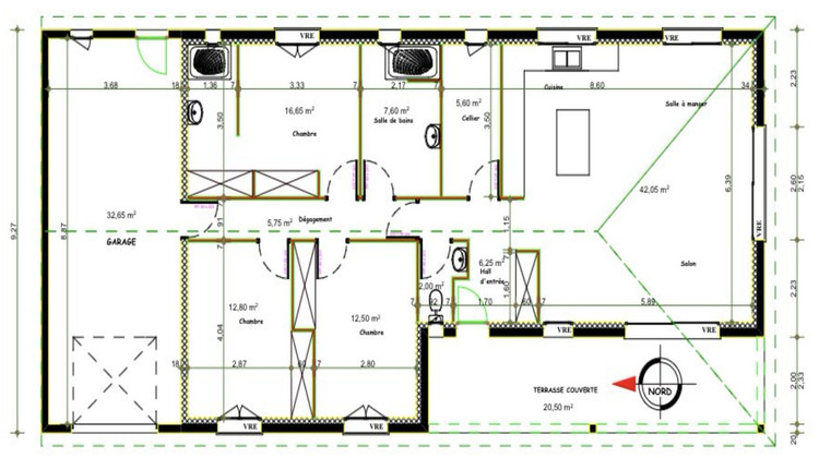
Sur la commune de Meysse (07400), cette maison de 111 m2 habitables est une excellente opportunité pour les personnes souhaitant créer leur intérieur sur-mesure. La maçonnerie et le terrassement sont déjà réalisés, laissant libre cours à vos projets de finition et d'aménagement. Avec ses 4 pièces, dont 3 chambres spacieuses, cette habitation est idéale pour une famille ou un couple cherchant un cadre de vie paisible. Le terrain de 587 m2 vous permet de profiter d'un espace extérieur pour aménager un jardin ou une terrasse. Un garage attenant de 32,65 m2 complète le bien, offrant une grande capacité de rangement ou d'espace de stationnement. Localisation et commodités : Meysse bénéficie d'un emplacement privilégié, à seulement 10 minutes de Montélimar et 30 minutes de Valence, vous offrant un accès rapide aux grandes villes tout en conservant la tranquillité de la campagne ardéchoise. La commune dispose également de toutes les commodités essentielles : écoles, commerces de proximité, infrastructures sportives et culturelles, tout est à portée de main pour faciliter votre quotidien. Saisissez cette belle opportunité d'investir dans un projet immobilier à fort potentiel ! Contactez-moi pour plus d'informations ou pour organiser une visite.
- Annonce rédigée et publiée par un Agent Mandataire -
- Type de bien : Maison
- Surface : 111 m²
- Localisation : France - Auvergne-Rhône-Alpes - Ardèche
- Ville : Meysse
- Code postal : 07400
- Annonce créée le 14/01/2026





